The 3D modeling process often begins on paper or in a 2D draft. The method of drawing or jotting out ideas is the springboard for creativity, and that shouldn't be bypassed if it is necessary. There are many ways to get from ideation to a formal working 3D model. It shouldn't stop at drawing or drafting, as technology offers you unprecedented views and angles with your 3D model. Whether creating a new product or developing an architectural project, 2D to 3D modeling services are necessary to move your modeling project along. 2D to 3D modeling services allow you to visualize your product or architectural project while gaining insight into the components and revealing spatial relations.
These things cannot be clearly shown on paper or with a 2D digital draft. Before investing more time and money into your projects, you want to see if your ideas and specifications are the best options for your actions. A 3D model can give you the insight you need to make this decision.
Cad Crowd has helped solopreneurs, entrepreneurs, and small and large business owners find the design talent they need to reach their business goals for almost ten years. Today, the design world is interlinked with business, and we understand how this bond can impact companies. As a result, our platform was created to connect business owners with experienced and talented freelance CAD services, specifically those offering 2D to 3D modeling services Whether you're making a new electronic product or developing a commercial property, our team is equipped to provide exceptional 2D to 3D modeling services To see how this technique can further benefit your business and how we can help, look at what we offer below.

Consumer tastes are continually evolving. As a result, you and your team consistently have to stay ahead of the curve when developing high-quality products that meet your customers' preferences. What better way to ensure this happens than by creating the perfect product that meets your customer's needs before it is mass-produced? 2D to 3D modeling services allow you to take 2D drawings and drafts and convert them to realistic 3D models that display all specifications.
Today, consumers are more visually oriented than ever, and a 3D model can tell you if you are on the right path to creating something of interest to your audience. 3D modeling design also makes building hype around your product possible by giving your audience a sneak peek of what's to come.
Today, our designers have the power to use CAD software to create stunning and photorealistic product models. They can easily adjust the product's color, measurements, sizing, or inner workings. However, before any of this can occur, taking advantage of 2D to 3D modeling services that convert your drafts and drawings into well-designed and detailed 3D product models is crucial.
When you see skyscrapers, apartment complexes, or residential developments, the chances are high that these projects will start as ideas on paper. They could have been full-fledged blueprints or plans sketched on paper. Either way, they likely began as 2D ideas.
A crucial step from concept to completion is 2D to 3D modeling Our designers can take your 2D architectural drafts and turn them into photorealistic renderings that bring the details of your architectural product to life 3D modeling services are essential for any architectural rendering 3D modeling helps to show how the architectural rendering fits into a specific space, how it complements other developments around it, the functionality of the interior space, the look of the finishes, and the angles that reveal whether the specifications will work in real life 3D modeling lets you test the feasibility of your concept, enabling you to see mistakes ahead of time and make changes to your idea before the physical work begins 2D to 3D modeling allows you to try what works and fix what doesn't.

To ensure your 2D drafts are converted into exceptional 3D models, our designers utilize various services to get you there. Here are the services you can expect to receive as our designers work on your next 2D to 3D modeling project.
Computer-aided design (CAD) – Our designers use this technique to bring your 2D drafts to life as 3D models. It is an effective way for our freelance designers to create renderings, visualizations, and models for your products or architectural projects.
CAD conversion services – File conversions may be part of this process. Our designers can turn PDFs into CAD, DWG, or PWG files. Each has compatible data, capabilities, and software tools. When converting one design to another, converting the files is often an additional part of the process. Our designers can also handle this, so you don't have to.
Product design – It requires attention to detail and combining creativity and functionality. The product has to convey attractiveness, usability, and safety while engaging your audience. Our designers are adept at industrial product design, packaging design, and even rapid prototyping for when you are ready to test out what you have created.
Architectural 3D modeling – Whether you are at the planning, fundraising, or research stage, a 3D architectural model is an essential step in the process. We have created 3D architectural models for architects, engineer consultants, digital media firms, and other clients. Our freelance designers can take your 2D drafts, layouts, or blueprints and turn them into photorealistic and detailed 3D architectural models that impress your stakeholders.
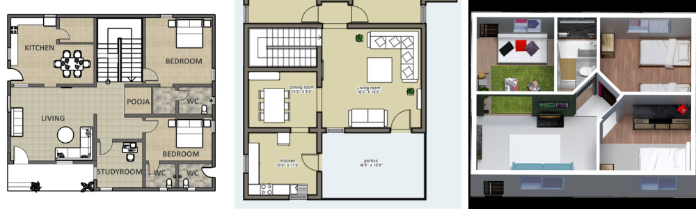
Floor plan design – It helps to have a bird' s-eye view of a commercial or residential property. These design layouts allow you and your clients to better understand interior space while giving a more realistic outlook of how the interior will look. It is hard to see how space will shape out with photos or only one POV. Our designers can produce exceptional floor plans that give you and your clients all the needed views.

Patent drawings – Do you have an idea for an excellent product you want to patent but are unsure where to start? The patent process can be overwhelming, but you can get the help you need with the right resources. Our designers understand the importance of the patent process and that these drawings are essential to a successful application. You can expect our designers to offer superb patent drawing services that complement our 2D to 3D modeling services.
3D logo design - Converting 2D concepts to 3D models is essential in 3D logo design services, as it transforms flat images into dynamic, visually engaging logos with added depth, texture, and shading. This innovative approach enhances a brand's identity and captivates potential customers, elevating the overall impact of the design.
These are only a few of our 2D to 3D modeling services. Our network of designers serves a variety of niches, so as a result, we have a comprehensive services list. So, to see what other help we offer, be sure to take a look at our services page.
We understand you have a business to run and don't have the time to manage design modeling projects while keeping your day-to-day business tasks on track. That is why we want to match you with exceptional designers who are experts at handling this for you. When you work with a Cad Crowd freelance 3D product modeling services, this is what you can expect:
The use of premier software tools – Our designers are not only the best at what they do, but they want to bring their best tools to your 2D to 3D modeling project. They are experts at using premier software tools like AutoCAD, ArchiCAD, Revit, 3DsMax, SketchUp, Solidworks, and other design programs that can set your modeling projects on the right path.
Attention to detail – All products and architectural projects are unique, and our designers must show exceptional attention to detail. Their goal is to reduce the number of errors that could plague your project. You deserve accuracy and a dedication to producing work that meets your specifications. So, you can trust that you will receive these qualities when you work with a Cad Crowd designer.
An efficient design process – Nothing holds up a design process more than errors, miscommunications, and a lack of clarity. Our designers will do all they can on the front end to ensure these do not become an issue. From regularly communicating with you about the progress of your project to asking detailed questions from the beginning, our designers will ensure your project moves without time-consuming problems.
Professionalism – You deserve to work with someone who truly cares about their work and is professional and pleasant with the clients they work with. We pride ourselves on working with freelance designers who communicate professionally and are experts in their field.
Customization – We do not believe in a one-size-fits-all approach, and you deserve solutions customized to your 2D to 3D modeling project. Our designers will not try to push you into a solution that may have worked for someone else; they will develop a personalized plan that works for you and your team.
A no-hassle hiring process – Who wants to sift through hundreds of resumes, portfolios, and cover letters while seeking the best person to handle your project? We want to ease the designer hiring process, so we have developed various ways for you to find the design help you need. For a more in-depth look into how we can match you with a pre-vetted and experienced designer, check out our "how it works" page.
Affordable pricing – Outsourcing allows you to purchase only the needed time and help Cad Crowd's platform is set up for you to do precisely that. Instead of having to produce large annual salaries and other hiring-related costs, our platform allows you to bypass this. You can create a mutually beneficial wage for yourself and the designer you choose to handle your project.
Our job is to make your design process straightforward. Your business deserves the best, and we want to help you find the right fit for your project. So, if you are preparing to enter the 3D modeling process but need to convert a 2D draft, you can feel secure knowing that our owners can provide the 2D to 3D modeling services you need.
As a business owner or entrepreneur, you have a lot on your plate, and the last thing you want to deal with is figuring out how to get your product or architectural idea from concept to completion. Fortunately, that is where Cad Crowd can help. We have worked with small companies and helped large corporations and organizations like Tiffany Co., PepsiCo, and Yale receive superb designs from capable freelance designers.
We want to provide the same level of expert design help to your next 2D to 3D modeling project. We aim to provide design help that aligns with your business goals. Ensure your next design project is handled by a capable designer who cares about the quality of your models.
🌟 Request a free quote today!
At Cad Crowd, we have the privilege of working with thousands of pre-vetted, highly qualified freelance 3D modelers and CAD services. Regardless of the type of project you have, rest assured that we'll connect you with someone just for you.