I will create professional ArchiCAD BIM models and construction drawings
About this service
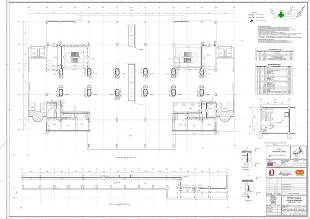
I am a professional architect providing ArchiCAD BIM modeling and construction documentation for residential and small commercial projects. I support clients in developing accurate, buildable architectural models and construction-ready drawings, suitable for design development, permits, and coordination.
My work focuses on:
-Clear and well-organized documentation
-BIM models that reflect how projects are actually built
-Clean model structure to allow easy revisions and coordination
This service is not focused on visuals only. It is aimed at delivering reliable architectural BIM models and drawings that reduce errors and misunderstandings during the project. ArchiCAD is my primary tool. Revit can also be used if required by the project. Optional real-time visualization using Twinmotion or Lumion can be included for design review or client presentations.
My work focuses on:
-Clear and well-organized documentation
-BIM models that reflect how projects are actually built
-Clean model structure to allow easy revisions and coordination
This service is not focused on visuals only. It is aimed at delivering reliable architectural BIM models and drawings that reduce errors and misunderstandings during the project. ArchiCAD is my primary tool. Revit can also be used if required by the project. Optional real-time visualization using Twinmotion or Lumion can be included for design review or client presentations.
I am a professional architect providing ArchiCAD BIM modeling and construction documentation for residential and small commercial projects. I support clients in developing accurate, buildable architectural models and construction-ready drawings, suitable for design development, permits, and coordination.
My work focuses on:
-Clear and well-organized documentation
-BIM models that reflect how projects are actually built
-Clean model structure to allow easy revisions and coordination
This service is not focused on visuals only. It is aimed at delivering reliable architectural BIM models and drawings that reduce errors and misunderstandings during the project. ArchiCAD is my primary tool. Revit can also be used if required by the project. Optional real-time visualization using Twinmotion or Lumion can be included for design review or client presentations.
My work focuses on:
-Clear and well-organized documentation
-BIM models that reflect how projects are actually built
-Clean model structure to allow easy revisions and coordination
This service is not focused on visuals only. It is aimed at delivering reliable architectural BIM models and drawings that reduce errors and misunderstandings during the project. ArchiCAD is my primary tool. Revit can also be used if required by the project. Optional real-time visualization using Twinmotion or Lumion can be included for design review or client presentations.
I am a professional architect providing ArchiCAD BIM modeling and construction documentation for residential and small commercial projects. I support clients in developing accurate, buildable architectural models and construction-ready drawings, suitable for design development, permits, and coordination.
My work focuses on:
-Clear and well-organized documentation
-BIM models that reflect how pro... read more
My work focuses on:
-Clear and well-organized documentation
-BIM models that reflect how pro... read more
I am a professional architect providing ArchiCAD BIM modeling and construction documentation for residential and small commercial projects. I support clients in developing accurate, buildable architectural models and construction-ready drawings, suitable for design development, permits, and coordination.
My work focuses on:
-Clear and well-organized documentation
-BIM models that reflect how projects are actually built
-Clean model structure to allow easy revisions and coordination
This service is not focused on visuals only. It is aimed at delivering reliable architectural BIM models and drawings that reduce errors and misunderstandings during the project. ArchiCAD is my primary tool. Revit can also be used if required by the project. Optional real-time visualization using Twinmotion or Lumion can be included for design review or client presentations. read less
My work focuses on:
-Clear and well-organized documentation
-BIM models that reflect how projects are actually built
-Clean model structure to allow easy revisions and coordination
This service is not focused on visuals only. It is aimed at delivering reliable architectural BIM models and drawings that reduce errors and misunderstandings during the project. ArchiCAD is my primary tool. Revit can also be used if required by the project. Optional real-time visualization using Twinmotion or Lumion can be included for design review or client presentations. read less
Service offer categories
ArchiCAD Design Services
Architectural Drawing Services
Architectural BIM Services
Software & skills
ArchiCAD
Architectural Design
Architectural Drawings
BIM Coordination
BIM Services
Construction Documentation
Construction Drawings
Design Development
Residential Design
Revit
+7 more
Member since
October 2025
Languages
Spanish,
English
Avg. response time
1 hour
Experienced Architect and BIM Modeler Skilled in ArchiCAD and Large-Scale Projects
Licensed architect with over 12 years of international experience in architecture, design, and BIM modeling. Skilled in ArchiCAD, Revit, and sustainable construction projects. I have worked on residential, hospitality, and interior design projects in Cuba, Spain, and the Caribbean, managing projects from concept to execution. Notable projects include large-scale hotels, residential buildings, and...
read more
Cad Crowd Billing Security policy
Service quality is protected by Cad Crowd Billing Security policy.
More from Carlos M.
More similar services
See related services
- 3D Design services
- 3D Modeling services
- CAD Design services
- 2D & 3D Design services
- 2D & 3D Modeling services
- Drafting services
- 3D Models services
- AutoCAD services
- Rendering services
- 2D Drafting services
- 2D Drawing services
- CAD Drafting services
- 2D AutoCAD services
- 3D Rendering services
- SolidWorks services
- Architectural Design services
- CAD Drawing services
- 2D & 3D Drafting services
- 2D/3D AutoCAD services
- Architectural Drawings services
- 2D & 3D Architectural Design services
- Floor Plans services
- 3D Visualization services
- Architectural Drafting services
- Construction Drawings services
- Interior Design services
- 3D Architectural Rendering services
- AutoCAD 2D Architectural Drawings services
- 2D & 3D Floor Plans services
- Structural Design services
- 3D Architectural Visualization services
- SketchUp services
- 2D & 3D Renderings services
- 2D Floor Plan Drawings services
- Elevations services
- Detailing services