Everybody who’s been dealing in the AEC (Architecture, Engineering, and Construction) sector is talking about how 3D modeling design services have changed the face of the business, revolutionizing the way a project is done and bringing much greater design clarity for clients and stakeholders alike. Let’s also not forget about BIM (Building Information Modeling), which is touted to be the best candidate to ensure the future of architectural AEC in an increasingly digitalized industry.
Does this mean that the era of 2D CAD is coming to an end after a long supremacy? Will three-dimensional graphics soar as the new gold standard for architectural drawings? It probably will, especially considering the fact that we do have the technology and the workforce to make it happen, perhaps sooner than later. If you take a look around, new CAD drafting services are popping up everywhere in the world, highlighting 3D modeling and BIM capabilities as their primary selling points.
No one denies the efficacy of 3D modeling as a communication tool that can easily convey spatial relationships between objects, make complex designs appear simple, and turn a sophisticated plan into a more discernible visualization. Despite the hype, however, 2D drafting still persists. And not just as remnants of the old ways, but a time-tested construction documentation format preferred by a good majority of architects, engineers, and construction professionals.
You can even say that 2D drafting still reigns supreme thanks to its practicality, efficiency, and yes, clarity. This also means that reliable CAD freelance professionals don’t just specialize in 3D modeling and visualization, but they also need to showcase mastery in conventional 2D drafting to cater to every client. For an unbeaten expertise in architectural drawings, both 2D and 3D CAD, look no further than Cad Crowd to discover and connect with the world’s most talented drafters.
🚀 Table of contents
How 2D drafting maintains relevance
In an industry where digital twins and photorealistic renders loom large, how does 2D drafting remain relevant? It turns out the answer is quite simple: while the increasingly advanced technologies are making ripples in the AEC sector, 2D drawing still serves pretty much as the foundation of it all, for good reasons.
Compliance
Some people see regulatory compliance as somewhat of a hindrance that holds back the industry from moving closer toward 3D CAD, but this is hardly true. Architectural drafts created in 2D drawings serve as the official record for ensuring compliance with building regulations and obtaining the relevant permits. Unlike 3D visualization services that mostly convey how a building or a project will look when it’s done, detailed 2D drawings are filled with detailed information about structural elements, dimensions, material specifications, and more. Even with all that data, the conventional 2D drawing is relatively small in file size compared to its 3D alternative.

RELATED: Top 37 companies for Lumion 3D rendering services & modeling for architectural firms
Familiarity
3D visualization does appear realistic and is easy to understand by the typical clients, but professionals have little need to hasten and replace their 2D-based tools with newer technologies if their current repository still does a perfectly good job. The works of architects, engineers, and contractors revolve around detailed two-dimensional plans; they don’t actually need photorealistic images to understand the construction process and design of a project. Industry professionals are familiar with the standard 2D format, and therefore, transitioning to a full-blown 3D-based workflow seems unnecessary at this point.
Precision
Given the familiarity, it makes little sense for professionals to do away with the precision afforded by 2D architectural design and drafting services. Although 3D modeling offers a lifelike depiction of a design, 2D drafting provides an all-around precision that’s simply indispensable in a construction project. A two-dimensional architectural draft isn’t a lifelike imagery of a design, but it contains every little detail that engineers and contractors need to know to carry out their duties. An architectural draft, by definition, is a technical drawing of a precise plan for a construction; it’s a construction document that doubles as an instruction manual. Therefore, it must be clear without any ambiguity on how to build a structure and eventually bring a design into reality.
Accessibility
One of the main issues with 3D CAD models is accessibility. You have the option to share the CAD file with all stakeholders, but it’s only effective when everyone is using the same software package. Otherwise, the file might need to go through a translation/conversion process that comes with a real risk of missing data. Note that some of the most popular 3D CAD applications are attached with hefty license and subscription fees, and each has a relatively steep learning curve. On the other hand, you only need to save a 2D architectural draft as a PDF, and everyone can access it easily. You can also produce dozens of physical copies and distribute them. In case modifications are necessary, the architects can just mark up the drawings and give detailed annotations using nothing but a pencil directly on paper. Easy accessibility brings about effective communication and fosters collaborative workflow.
2D CAD applications in modern projects
The industry must admit that 3D modeling has increasingly become the format of choice, especially when used within the BIM framework. That being said, even in today’s industry landscape, which is constantly pushed to adopt new technology, there are various instances where 2D drafting services remain the better option. 2D CAD is still prevalent, at least for the following applications.
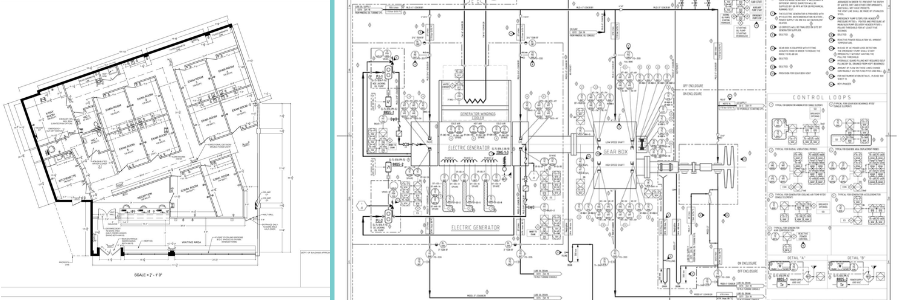
- Site plan: a two-dimensional representation of the project site, seen from a bird’s eye perspective. It showcases the layout of the project site, utilities related to the property, and boundaries. Think of it as a map of the project site that details how every single structure and other elements will be positioned. Site plans are indispensable for project planning, allowing architects and engineers to craft a workable roadmap that serves as a guideline for how everything should be done before, during, and after construction.
- Floor plan: also a top-down view image, a floor plan is meant to showcase the layout of individual rooms in an interior. It helps visualize how all the rooms and areas are connected to each other. Major details include placement of doors, windows, furniture pieces, fixtures, and lighting. Like every other construction drawing, a floor plan is heavily annotated with such information as dimensions, tolerance, materials, finishes, etc.
- Structural drawing: The main focus of structural drawings is load-bearing elements, which may include foundations, beams, columns, walls, and floors. More than just a simple visualization of a structure, these drawings outline how load-bearing elements must be constructed to ensure that the structure can withstand weight, wind, and other forces that are essential for engineering design firms to succeed.
- MEP drawings: As the name suggests, MEP drawings convey the mechanical, electrical, and plumbing systems to be installed in a building. Mechanical drawings highlight the HVAC system, including equipment locations, ductwork layouts, and system specifications. Electrical drawings specifically focus on power distribution, wiring diagrams, switch locations, and sometimes communication systems as well. On the other hand, plumbing drawings outline the pipe layouts for water supply and drainage, fixture locations, and waste removal systems, to name a few.
Important construction documents, such as shop drawings, fire protection and safety drawings, and as-built drawings, are also most commonly presented in a two-dimensional format.
Although 3D modeling is excellent for visualization purposes, 2D CAD drawings are still the language of choice for construction projects used by industry professionals. 2D drafting isn’t just relevant to modern architecture; it’s a critical tool to communicate designs, details, fabrication processes, and construction methods.

RELATED: Why 3D modeling is used in building architectural projects with freelance designers and firms?
Takeaway
It’s simply undeniable that 3D-based architectural drawing services have delivered a major impact on the industry as a whole. But the fact of the matter is that the AEC sector is still in a transition period from the currently mainstream 2D to the new workflow that revolves around 3D visualizations. Not only does this require readiness in technical abilities, but it also requires changes in tools. You can’t get rid of the notion that 3D modeling would soon relegate its predecessor to a second-class solution, but at least for the time being and even perhaps the foreseeable future, 2D drafting is still universally approved as the standard format for the AEC industry at large. This is not because of the reluctance to welcome changes, but is driven by the need to maintain project efficiency and accuracy.
Architects, engineers, designers, and contractors are familiar and comfortable with the technical nature of 2D drafts, whereas typical clients prefer to see complex lines, shapes, and annotations rendered into lifelike models. As far as the industry is concerned at this point, being able to easily switch between 2D and 3D should facilitate the transition at a more friendly pace. CAD software with features that enable 3D visualization while still delivering all the advantages of 2D architectural drawings will be the tool of choice during this transitory phase. This kind of flexibility allows professionals to work efficiently in their preferred fashion without undermining the importance of good communication with their clients. The workflow should treat 3D models as byproducts of 2D drafts to ensure accuracy, viewing lifelike visualization as the translated form of a technical drawing that maintains all the right details.
When flexibility and accuracy are what you’re after in architectural drafters, Cad Crowd has you covered. The AEC-focused freelancing platform is a busy hub populated by CAD professionals boasting expertise in both 2D and 3D modeling for residential, commercial, industrial, and civil projects, big and small. Get a free quote today.