How Much Do CAD Drawing Services Cost for Design Drafting & Architectural Blueprints?

How Much Do CAD Drawing Services Cost_

CAD drawings are critical to many different industries. They are used by architectural design services to create detailed blueprints for future buildings, but also for manufacturing and other equipment that requires drafting to be successfully built.

Before CAD software was available, blueprints and schematics for manufacturing were entirely drawn by hand. This was an expensive undertaking that required a full team of drafters to complete, but thanks to this software, only one drafter is usually needed.

If you have a new apartment design you want built, or a complex product you want to be brought into the world, you may need to utilize CAD drawing services to be successful.

RELATED: CAD Conversion: Do your drawing conversions in-house or outsource?

Several different factors will change the cost of CAD drawing services, but in general, you can expect them to run between $100 and $150 per hour. Some drafters offer lower prices due to lack of experience, while higher prices may be due to someone’s high qualifications.


:rocket: Table of Contents 


Why hire a CAD artist

CAD artists are generally known for their realistic 3D renders. Yet freelance 2D drawing and floor plan designers also have an important role in architecture and product creation.

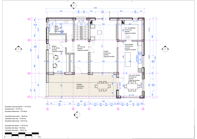
In the case of architecture, a 2D artist is needed when blueprints or other parts of a housing project need a personal touch. Most homes and buildings come from premade designs that are modified very little, but if the plan is for a unique look, you’ll need a professional artist to make those changes for you.

cad-drawing-2

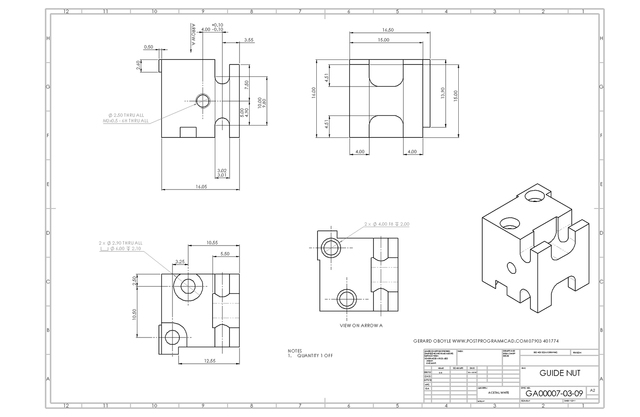
New products that need schematics drawn up and other unique creations may also require the help of 2D drafting to continue along the creative process.

Cost fluctuations in CAD drawing services

To better nail down the price of these services, let’s take a look at what can change the cost. The factors that change pricing include:

Experience

A more experienced mechanical drafting freelancer will generally have a higher price than someone new or just starting out. It’s common for newer professionals who have no references to offer an entry price in the hopes of luring those first few customers into trying them out.

While you may get a good deal from a talented person who is just looking to get their foot in the door, you may also be surprised with work that is not up to your standards.

Education

An artist who has developed their education more will have higher prices than someone who has little to no education. CAD drafting services generally have at least an associate’s degree, and many have much more.

RELATED: How bad product design services can cost your company a fortune

They may have ADDA Certification (American Design Drafting Association) or have a more advanced education, such as an engineering or architecture degree, to further improve on their skills.

Location

Different countries charge different prices. Higher prices come from more developed countries. While you may experience a higher price in a developed country, you are also more likely to get a better product.

The type of drafting you’re looking for

Architectural engineering design services are generally more expensive than ordinary drafting. You may see a fluctuation in price depending on what industry you’re interested in and whether you’re working with someone who is an actual architect, compared to someone who is drawing the designs.

Type of drawing

There are several different types of 2D and 3D drawings you may want for your design. 3D drawings are typically labeled as renders and have a different pricing structure. When it comes to 2D drawings, there are different types and sizes. The price of a blueprint might be different than the cost of a drawing of what the building might look like from the perspective of someone looking at it.

Many projects require several different views to be drawn up, as many as a dozen, and these all add to the number of hours worked.

Size is also something to keep in mind. While in most cases, the bigger the drawing, the more costly it will be, this isn’t always the case. If a drawing is small but extremely intricate, it may end up costing more due to the amount of time needed to draw in all of those details. There are freelance assembly drawing services you can hire for help.

Adjustments and changes

Most projects end up with changes wanted during or after the project. Some larger firms will make small corrections for free, but this is limited to a specific number of corrections and isn’t the case across all drafters. In most other cases, every time a change is made, this adds to the number of hours worked, which will influence the price.

Outsourcing or in-House

If you know you’re going to need CAD drawing services, the next step is to decide whether you want to hire a permanent employee or outsource the project to a third party. In-house is a good option when there are a lot of projects that need to be done, or time is not important.

If you need a project right away and can’t wait to find a permanent employee, or if you only need one project done and don’t want an employee on the payroll with nothing to do, hiring a freelancer will save money.

cad-drawing-1-1

Many companies choose to hire a freelancer anyway, finding it more efficient to rely on a firm that specializes in CAD design than to hire an individual or team for the same purpose.

A typical freelance AutoCAD drafter has a salary of $44,000. A simple set of blueprints for a home might take 8 hours to draw and cost over $1,000. If you need enough projects done that hiring in-house will save money, this might be the best bet, but most companies opt to use freelancers due to their efficiency.

Where to look for a drafter

There are many great websites online that can help you locate a drafter. These include both standard job websites and freelancing websites. Here are a few good places to try, whether you’re looking for in-house or freelance help.

Cad Crowd

Cad Crowd provides CAD drawing services from some of the world’s most trusted professionals. They curate drafters for quality and professionalism, which takes much of the work out of finding an ideal drafter. If you’re looking for the fastest and safest route to starting your project, this is the way to go.

Cad Crowd exclusively focuses on CAD design, which makes them uniquely tailored to handling projects that require the help of a 2D or 3D artist.

Monster

If you’re looking to hire an in-house drafter, Monster may be the right choice for you. Monster does the work of recruiting candidates, so you can find the in-house people you need for your job.

villa-space

Upwork

Upwork is an option for finding freelancers. It’s a more general website than Cad Crowd and has a large number of different types of freelancers.

Finding a quality CAD technician

CAD artists come in a variety of skills and education levels. In order to find someone that fits the quality you are expecting, it’s important to choose a technician carefully and to thoroughly evaluate their skills before spending hundreds or thousands on their work.

RELATED: How bad product design services can cost your company a fortune

You can save big by doing your due diligence and not wasting money on a drawing you can’t use. Here are a few suggestions on finding someone who can provide you with the architectural drawing services you need.

Check their portfolio

A glance at a portfolio can tell you quickly what kind of drawings they have experience in. If you’re looking for an architect, you’ll want to see drawings of residential or commercial blueprints. If you are looking for an engineer for your product, you might want to see 2d schematics of products rather than homes.

Ask for references

References can tell you not only if the customer was happy with the drawings or not, but other useful things. It’s unlikely you will be able to tell whether a CAD technician was polite, got the project done on time, or handled mistakes with class, from a portfolio. A reference can clue you in on these things, however and can help you sort out whether this person is right for you or not.

Check reviews

Most companies will have reviews on Google+ plus other review sites, and it’s worthwhile to check them out. If the majority of reviews are good, you can be confident your experience will likely be good as well. If there are a lot of poor reviews, it might be wise to choose a different company.

Try a small project

If you’re not certain how they will work for you, try testing the waters with a small or less important project first. That way, if things go poorly, you won’t have wasted time and money on something that wouldn’t work out.

Whether you are choosing a freelancer or an industrial design service, asking questions and getting to know them is a sensible way to go. If your architecture or product is unique enough that it needs CAD drawing services, it’s worth taking the time to find a quality artist who can get the drawing done the way you want it.

Cad Crowd’s design services are at your disposal

At Cad Crowd, we have the privilege of working with hundreds of highly qualified CAD design freelancers and 3D modeling experts. Our network has worked with high-profile clients like Tiffany & Co. If you’d like to work with us, get a free quote today.

author avatar
Andrea Kuska