In this post, we are exploring as-built drawings costs & drafting rates at architecture companies. Nearly all construction projects, especially commissioned ones, require proper documentation in the form of as-built drawings. Every building component is specified with clear and detailed information, and homeowners or operators must refer to the documents when planning for future improvement or significant renovations. The documentation must be updated with every subsequent project, large and small, to identify all the modifications made to the original CAD design drawing services.
It is the contractor’s job, rather than the architect’s, to produce as-built drawings at the end of construction projects. Since the drawings indicate alterations from the original plan, they depict the building as it stands at the documentation time. As-built drawings are part of the contractor’s job description, but their role ends when the project concludes, and it is the homeowner’s responsibility to record any changes after that.
Table of Contents
RELATED: How much does an architect or architectural firm cost for home design?
As-built drawings costs
There is no standard pricing for as-built drawings services. The cost depends on several factors, such as the size of the building, the complexity of equipment installed, the number of drawings to produce, and the level of detail. The average cost of as-built drawings is $700 to $1,300 for a residential building or around $0.40 to $2.50 per square foot. An on-site visit is mandatory to track the alterations from the original plan to the building’s current configuration.
The cost for as-built Autocad drawing services for older buildings with outdated documentation can be high. For example, decades-old electrical and plumbing systems may have been majorly upgraded. Tracking the alterations takes extensive research if the original building plan is nowhere to be found. A surveyor will need to contact the architect (or the architectural firm) who owns the rights to the original design. Such an effort can add significant work hours and therefore cost.
RELATED: Learn about architectural design fee schedules, rates, and pricing for architect firms’ costs
Reference for future improvements
In a new project, a significant part of the contractor’s job is maintaining proper documentation of construction progress. A contractor uses the architect’s plan drawings as guidebooks: the structure, exterior, interior, finishes, features, and systems should be (at least theoretically) identical to the plan. However, unforeseen challenges during construction may require the contractor to make some alterations to the project.
If the architect is involved in the construction, usually to provide project oversight, making any changes should be straightforward. The architectural planning and design drawings remain unmodified, but the actual building will no longer be identical to the architect’s plan. All the alterations are documented in the as-built drawings.
RELATED: The power of architectural CAD services
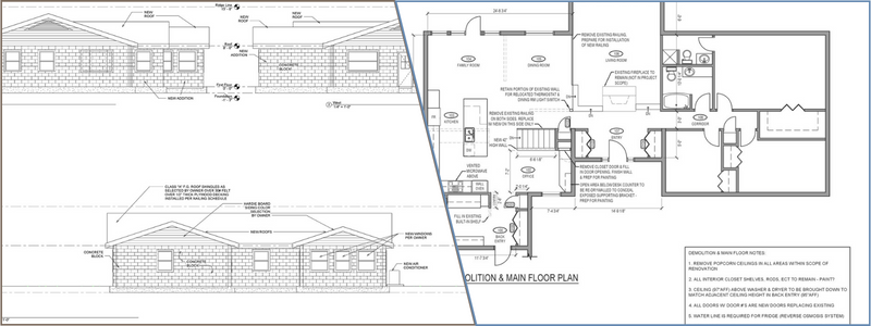
As-built drawings should indicate changes made throughout the lifetime of the building. It should not be limited to the alterations made to an architect’s plan during the initial construction. The homeowner needs to make new as-built drawings after every renovation or remodeling, which alters the previous one. It does not matter if the renovation involves moving a light fixture or adding another length of pipe to the plumbing line; updated as-built drawings are the best reference for any future home improvement project.
Most utility companies will also appreciate an updated as-built for maintenance or upgrade purposes. The drawings provided by an architectural construction design services expert help avoid costly mistakes during repair due to unknown previous installations. Should the building be sold, the buyer doesn’t have to commission a surveyor to have a new as-built made before remodeling.
RELATED: Why hire an architectural design service?

What should an as-built drawing include?
An as-built drawing must indicate the following components and all relevant changes:
- Installation location. A conclusive as-built drawing indicates the location of all significant building features, such as doors, windows, electrical panels, wiring schematic, plumbing lines, and permanent fixtures (anchored to the ground as part of the structure).
- Building materials. If there are changes to the building materials, an as-built drawing must provide the information in the most comprehensive way possible. The original materials specified and the ones used in construction must be detailed.
- Equipment/systems. Alterations to the installed equipment are also included, for example, HVAC design services and sprinkler systems changes.
- Size. Major remodeling or addition may alter the building’s overall dimensions. An as-built drawing must specify the nature of the changes and the new dimensions.
- Prefabricated elements. A replacement of a structural component, such as a beam or column, using an alternative (prefabricated offsite) material should be indicated.
RELATED: CAD freelancers & contractors on Cad Crowd: A personalized outsourcing solution
Apart from these, the as-built drawing needs to describe all changes requested during final inspections, shop drawings, appendices, and the difficulties (in the project) that called for those modifications. Another crucial piece of information is the documentation’s timestamp (accurate time and date). After the construction project is completed, the final design document is the as-built drawing. A comparison between an as-built and the original architect’s plan gives a clear overview of the intended design and how it has materialized.
If the finished building requires an upgrade, repair, or component replacements, homeowners can always refer to the latest as-built drawing. Due to recurrent renovations, there can be multiple as-built drawings for a single building; a series of such documents provide a complete history of construction modifications. If the homeowner updates the pictures, future home improvement projects can start with minimum guesswork.
RELATED: Structural engineering rates & costs for architectural design firms
An architect also tends to charge a higher fee for renovation work than for new construction. One of the main reasons is the unpredictability of the building’s condition. An updated as-built drawing helps the architect plan the renovation more confidently, knowing there will be very few unexpected challenges. The pictures allow the architect and contractor to see what the previous builders did, what materials they used, and how long ago the construction was. An architect informed of the building condition might be willing to reduce the rate for the homeowner.
While an on-site visit is still required to prepare the renovation or remodeling plan, the architect doesn’t need to re-take building measurements or be in doubt as to whether the construction site unnecessarily disturbs other existing structures.
RELATED: Hire freelancers & contractors on Cad Crowd for support with architecture, houses & building design

How it is drawn
An as-built drawing is more straightforward to produce than the original architectural site plan design services. The process of preparing an as-built drawing typically follows the procedures below:
- Practical notes. A contractor makes notes on a copy of the original design plan. Detailed notes should include the time and description of the changes applied.
- Documentation. The contractor converts the rudimentary notes into an organized document. As soon as the architect and the project owner approve any proposed changes, the letters—and, accordingly, the document—receive an update. Such a method helps a contractor document every alteration in the correct order.
- Clean drawing. Upon project completion, the contractor can either create an as-built illustration or make it by an architectural drafting company. A contractor can hire the same draftsperson who prepared the original design in the first place or another professional. The most important thing is maintaining the same scale, format consistency, and color-coding uniformity.
In the old days, many contractors prepared as-built drawings by hand. Although a manual hand-drawn construction document is not wrong, digital images are preferable. A printout of the original plan can be converted with 2D CAD drafting services into a digital format, making it easier for a contractor to mark the changes using CAD software.
RELATED: Architectural plans, CAD drawing costs & architect service pricing
Every single modification, including removal and addition, is highlighted in red. A timestamp and explanation for the changes must also be included: it can be a request from the project owner, a suggestion made during the final inspection, or a result of challenges during construction. Once completed, the architect reviews the as-built drawings and inputs the changes to the original design plan. Every document created following the completion of a project is sent to the client for archiving. The client is then responsible for maintaining the records and updating them each time an alteration is made to the structure.
Addressing common misconceptions
- As-built drawings: the final design documents that represent the construction as is, prepared by the contractor. Changes to the architect’s original plan are marked in red inks.
- Measure drawings: historical documentation of a building or construction site measurements. The document is prepared and created based on an actual site visit.
- Record drawings: the final design document created by the architect based on the contractor’s as-built drawings. The paper reflects on-site changes as indicated on an as-built. The architect makes the drawings for the project owner.
RELATED: Where and when to find freelance architecture visualization services and designers
A contractor must determine a note-making procedure before the construction process, allowing them to prepare the mandatory as-built from the very beginning of the project. The data collection process may seem straightforward enough, but a slight overlook can result in a missing record. When the builders implement an approved alteration, the contractor must ensure every work is accounted for.
While the data collection process may halt the construction a tiny bit, it is a good trade-off for documentation accuracy. It is not always easy to memorize all the slight adjustments made several weeks (if not months) ago during busy construction work.
How can Cad Crowd help?
At Cad Crowd, we have the privilege of working with some of the world’s best freelance as-built drawings designers. If you’re looking for help with your project, get in touch with us for a free quote.