Full Set Architectural Plan Design – Complete 2D Drawing Package(Hourly)

alirezaemamian
Hourly services rate

$50/hour

Hourly service work rate

Availability: 40 hours/week

custom work
Request customized services

If this service doesn’t quite match your needs, reach out for a custom quote. Discuss pricing and deadlines to design a project just for you.

About this service

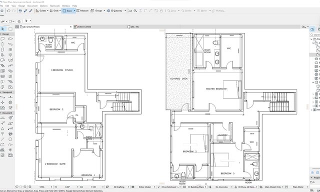
I provide a complete, well-organized architectural drawing set ready for presentation, coordination, and permit pre-review. All drawings follow clean layer standards, consistent line weights, and clear annotations for fast client/contractor understanding.

What you get:

Floor Plans (dimensions, room names, door/window tags, levels)

Sections & Elevations (key heights, materials, openings)

Site Plan (property lines, setbacks, basic landscaping as available)

Schedules (door/window schedules as needed)

Details & Legends (typical wall/door/window details, symbols, north arrow)

Title Block & Sheet Index with project info and scales


File formats:
PDF for print-ready sheets

DWG/DXF (AutoCAD) with organized layers

IFC/PNG/JPG on request

Package tiers (match the Pricing section)


Process:

Kickoff & brief – gather requirements, codes, and references.

Drafting – base plans and sheet setup.

Review – share first draft; collect comments.

Refinement – apply revisions and QA.

Final delivery – PDF + source DWG/DXF, neatly organized.

What I need from you:

Existing drawings/sketches, survey/site info (if any)

Project program (room list & approximate sizes)

Preferred standards/codes, units (metric/imperial), title-block info

Style references or sample drawings (optional)


Notes

Drawings are produced to professional drafting standards. Engineer/architect stamps and local code sign-off are not included. If you need permit-ready sets specific to your jurisdiction, I can align... read more
I provide a complete, well-organized architectural drawing set ready for presentation, coordination, and permit pre-review. All drawings follow clean layer standards, consistent line weights, and clear annotations for fast client/contractor understanding.

What you get:

Floor Plans (dimensions, room names, door/window tags, levels)

Sections & Elevations (key heights, materials, openings)

Site Plan (property lines, setbacks, basic landscaping as available)

Schedules (door/window schedules as needed)

Details & Legends (typical wall/door/window details, symbols, north arrow)

Title Block & Sheet Index with project info and scales


File formats:
PDF for print-ready sheets

DWG/DXF (AutoCAD) with organized layers

IFC/PNG/JPG on request

Package tiers (match the Pricing section)


Process:

Kickoff & brief – gather requirements, codes, and references.

Drafting – base plans and sheet setup.

Review – share first draft; collect comments.

Refinement – apply revisions and QA.

Final delivery – PDF + source DWG/DXF, neatly organized.

What I need from you:

Existing drawings/sketches, survey/site info (if any)

Project program (room list & approximate sizes)

Preferred standards/codes, units (metric/imperial), title-block info

Style references or sample drawings (optional)


Notes

Drawings are produced to professional drafting standards. Engineer/architect stamps and local code sign-off are not included. If you need permit-ready sets specific to your jurisdiction, I can align to your municipality’s checklist or coordinate with your licensed professional. read less
I provide a complete, well-organized architectural drawing set ready for presentation, coordination, and permit pre-review. All drawings follow clean layer standards, consistent line weights, and clear annotations for fast client/contractor understanding.

What you get:

Floor Plans (dimensions, room names, door/window tags, levels)

Sections & Elevations (key heights, materials, openings)

Site P... read more
I provide a complete, well-organized architectural drawing set ready for presentation, coordination, and permit pre-review. All drawings follow clean layer standards, consistent line weights, and clear annotations for fast client/contractor understanding.

What you get:

Floor Plans (dimensions, room names, door/window tags, levels)

Sections & Elevations (key heights, materials, openings)

Site Plan (property lines, setbacks, basic landscaping as available)

Schedules (door/window schedules as needed)

Details & Legends (typical wall/door/window details, symbols, north arrow)

Title Block & Sheet Index with project info and scales


File formats:
PDF for print-ready sheets

DWG/DXF (AutoCAD) with organized layers

IFC/PNG/JPG on request

Package tiers (match the Pricing section)


Process:

Kickoff & brief – gather requirements, codes, and references.

Drafting – base plans and sheet setup.

Review – share first draft; collect comments.

Refinement – apply revisions and QA.

Final delivery – PDF + source DWG/DXF, neatly organized.

What I need from you:

Existing drawings/sketches, survey/site info (if any)

Project program (room list & approximate sizes)

Preferred standards/codes, units (metric/imperial), title-block info

Style references or sample drawings (optional)


Notes

Drawings are produced to professional drafting standards. Engineer/architect stamps and local code sign-off are not included. If you need permit-ready sets specific to your jurisdiction, I can align to your municipality’s checklist or coordinate with your licensed professional. read less

Service offer categories

2D Drawings and Floor Plans 3D Architectural Site Plan Rendering Architectural Drawing Services CAD Drawing Services +1 more

Software & skills

ArchiCAD Architectural BIM BricsCAD BIM
alirezaemamian
Top Designer Top designer
Larnaca, Larnaca, Cyprus – 12:06 p.m. local time

Member since
November 2024
Languages
English
Avg. response time
1 hour

Experienced 3D & 2D artist specializing in high-quality renderings, animations, and virtual interior

Architect,Electrical and Mechanical Designer & 3D Generalist based in Larnaca, Cyprus.
I specialize in architectural visualization, 3D modeling, and realistic rendering for residential, commercial, and landscape projects. With strong experience in software such as Unreal Engine, 3ds Max, Blender, and CAD tools, I deliver high-quality visuals, animations, and detailed project presentations. I focus... read more

Questions and answers

A hand sketch, existing drawings, or a basic floor plan is enough to begin. If you have a site survey or reference images, sharing them will help achieve higher accuracy.

You will receive PDF files ready for printing, plus editable DWG/DXF files in organized layers. Additional formats such as IFC, PNG, or JPG can be provided upon request.

The drawings follow professional drafting standards and can be aligned to your municipality’s checklist. However, they do not include a licensed architect/engineer stamp. You may need a local professional for permit approval.

Yes, I can create full plan sets for houses, apartments, offices, retail spaces, and more. Just provide the scope and requirements.
Hourly services rate

$50/hour

Hourly service work rate

Availability: 40 hours/week

custom work
Request customized services

If this service doesn’t quite match your needs, reach out for a custom quote. Discuss pricing and deadlines to design a project just for you.

Billing Security Policy
Cad Crowd Billing Security policy

Service quality is protected by Cad Crowd Billing Security policy.