Full Set Architectural Plan Design – Complete 2D Drawing Package
About this service
I provide a complete, well-organized architectural drawing set ready for presentation, coordination, and permit pre-review. All drawings follow clean layer standards, consistent line weights, and clear annotations for fast client/contractor understanding.
What you get:
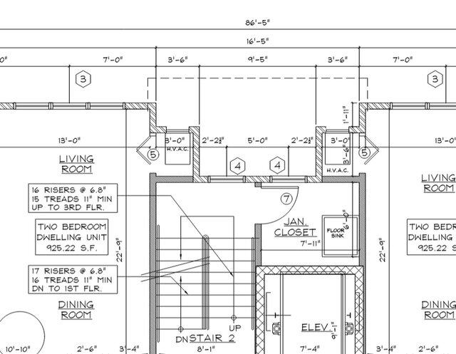
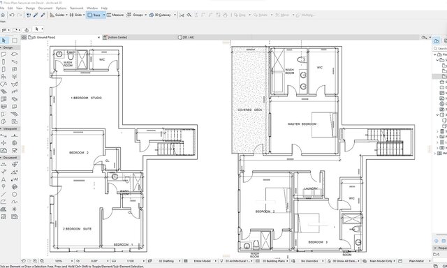
Floor Plans (dimensions, room names, door/window tags, levels)
Sections & Elevations (key heights, materials, openings)
Site Plan (property lines, setbacks, basic landscaping as available)
Schedules (door/window schedules as needed)
Details & Legends (typical wall/door/window details, symbols, north arrow)
Title Block & Sheet Index with project info and scales
File formats:
PDF for print-ready sheets
DWG/DXF (AutoCAD) with organized layers
IFC/PNG/JPG on request
Package tiers (match the Pricing section)
Process:
Kickoff & brief – gather requirements, codes, and references.
Drafting – base plans and sheet setup.
Review – share first draft; collect comments.
Refinement – apply revisions and QA.
Final delivery – PDF + source DWG/DXF, neatly organized.
What I need from you:
Existing drawings/sketches, survey/site info (if any)
Project program (room list & approximate sizes)
Preferred standards/codes, units (metric/imperial), title-block info
Style references or sample drawings (optional)
Notes
Drawings are produced to professional drafting standards. Engineer/architect stamps and local code sign-off are not included. If you need permit-ready sets specific to your jurisdiction, I can align... read more
What you get:
Floor Plans (dimensions, room names, door/window tags, levels)
Sections & Elevations (key heights, materials, openings)
Site Plan (property lines, setbacks, basic landscaping as available)
Schedules (door/window schedules as needed)
Details & Legends (typical wall/door/window details, symbols, north arrow)
Title Block & Sheet Index with project info and scales
File formats:
PDF for print-ready sheets
DWG/DXF (AutoCAD) with organized layers
IFC/PNG/JPG on request
Package tiers (match the Pricing section)
Process:
Kickoff & brief – gather requirements, codes, and references.
Drafting – base plans and sheet setup.
Review – share first draft; collect comments.
Refinement – apply revisions and QA.
Final delivery – PDF + source DWG/DXF, neatly organized.
What I need from you:
Existing drawings/sketches, survey/site info (if any)
Project program (room list & approximate sizes)
Preferred standards/codes, units (metric/imperial), title-block info
Style references or sample drawings (optional)
Notes
Drawings are produced to professional drafting standards. Engineer/architect stamps and local code sign-off are not included. If you need permit-ready sets specific to your jurisdiction, I can align... read more
I provide a complete, well-organized architectural drawing set ready for presentation, coordination, and permit pre-review. All drawings follow clean layer standards, consistent line weights, and clear annotations for fast client/contractor understanding.
What you get:
Floor Plans (dimensions, room names, door/window tags, levels)
Sections & Elevations (key heights, materials, openings)
Site Plan (property lines, setbacks, basic landscaping as available)
Schedules (door/window schedules as needed)
Details & Legends (typical wall/door/window details, symbols, north arrow)
Title Block & Sheet Index with project info and scales
File formats:
PDF for print-ready sheets
DWG/DXF (AutoCAD) with organized layers
IFC/PNG/JPG on request
Package tiers (match the Pricing section)
Process:
Kickoff & brief – gather requirements, codes, and references.
Drafting – base plans and sheet setup.
Review – share first draft; collect comments.
Refinement – apply revisions and QA.
Final delivery – PDF + source DWG/DXF, neatly organized.
What I need from you:
Existing drawings/sketches, survey/site info (if any)
Project program (room list & approximate sizes)
Preferred standards/codes, units (metric/imperial), title-block info
Style references or sample drawings (optional)
Notes
Drawings are produced to professional drafting standards. Engineer/architect stamps and local code sign-off are not included. If you need permit-ready sets specific to your jurisdiction, I can align to your municipality’s checklist or coordinate with your licensed professional. read less
What you get:
Floor Plans (dimensions, room names, door/window tags, levels)
Sections & Elevations (key heights, materials, openings)
Site Plan (property lines, setbacks, basic landscaping as available)
Schedules (door/window schedules as needed)
Details & Legends (typical wall/door/window details, symbols, north arrow)
Title Block & Sheet Index with project info and scales
File formats:
PDF for print-ready sheets
DWG/DXF (AutoCAD) with organized layers
IFC/PNG/JPG on request
Package tiers (match the Pricing section)
Process:
Kickoff & brief – gather requirements, codes, and references.
Drafting – base plans and sheet setup.
Review – share first draft; collect comments.
Refinement – apply revisions and QA.
Final delivery – PDF + source DWG/DXF, neatly organized.
What I need from you:
Existing drawings/sketches, survey/site info (if any)
Project program (room list & approximate sizes)
Preferred standards/codes, units (metric/imperial), title-block info
Style references or sample drawings (optional)
Notes
Drawings are produced to professional drafting standards. Engineer/architect stamps and local code sign-off are not included. If you need permit-ready sets specific to your jurisdiction, I can align to your municipality’s checklist or coordinate with your licensed professional. read less
I provide a complete, well-organized architectural drawing set ready for presentation, coordination, and permit pre-review. All drawings follow clean layer standards, consistent line weights, and clear annotations for fast client/contractor understanding.
What you get:
Floor Plans (dimensions, room names, door/window tags, levels)
Sections & Elevations (key heights, materials, openings)
Site P... read more
What you get:
Floor Plans (dimensions, room names, door/window tags, levels)
Sections & Elevations (key heights, materials, openings)
Site P... read more
I provide a complete, well-organized architectural drawing set ready for presentation, coordination, and permit pre-review. All drawings follow clean layer standards, consistent line weights, and clear annotations for fast client/contractor understanding.
What you get:
Floor Plans (dimensions, room names, door/window tags, levels)
Sections & Elevations (key heights, materials, openings)
Site Plan (property lines, setbacks, basic landscaping as available)
Schedules (door/window schedules as needed)
Details & Legends (typical wall/door/window details, symbols, north arrow)
Title Block & Sheet Index with project info and scales
File formats:
PDF for print-ready sheets
DWG/DXF (AutoCAD) with organized layers
IFC/PNG/JPG on request
Package tiers (match the Pricing section)
Process:
Kickoff & brief – gather requirements, codes, and references.
Drafting – base plans and sheet setup.
Review – share first draft; collect comments.
Refinement – apply revisions and QA.
Final delivery – PDF + source DWG/DXF, neatly organized.
What I need from you:
Existing drawings/sketches, survey/site info (if any)
Project program (room list & approximate sizes)
Preferred standards/codes, units (metric/imperial), title-block info
Style references or sample drawings (optional)
Notes
Drawings are produced to professional drafting standards. Engineer/architect stamps and local code sign-off are not included. If you need permit-ready sets specific to your jurisdiction, I can align to your municipality’s checklist or coordinate with your licensed professional. read less
What you get:
Floor Plans (dimensions, room names, door/window tags, levels)
Sections & Elevations (key heights, materials, openings)
Site Plan (property lines, setbacks, basic landscaping as available)
Schedules (door/window schedules as needed)
Details & Legends (typical wall/door/window details, symbols, north arrow)
Title Block & Sheet Index with project info and scales
File formats:
PDF for print-ready sheets
DWG/DXF (AutoCAD) with organized layers
IFC/PNG/JPG on request
Package tiers (match the Pricing section)
Process:
Kickoff & brief – gather requirements, codes, and references.
Drafting – base plans and sheet setup.
Review – share first draft; collect comments.
Refinement – apply revisions and QA.
Final delivery – PDF + source DWG/DXF, neatly organized.
What I need from you:
Existing drawings/sketches, survey/site info (if any)
Project program (room list & approximate sizes)
Preferred standards/codes, units (metric/imperial), title-block info
Style references or sample drawings (optional)
Notes
Drawings are produced to professional drafting standards. Engineer/architect stamps and local code sign-off are not included. If you need permit-ready sets specific to your jurisdiction, I can align to your municipality’s checklist or coordinate with your licensed professional. read less
Service offer categories
Architectural BIM Services
2D CAD Design Services
Design & Drafting
Floor Plan Design
Landscape Design
2D CAD Drafting Services
2D CAD Drawing to Revit Conversion Services
AutoCAD Drafting & Design
+5 more
Software & skills
2D AutoCAD
ArchiCAD
Architectural BIM
Autodesk Revit
BricsCAD
+2 more
This service includes
| Service tiers | Simple $1,000 | Standard $1,700 | Advanced $3,500 |
|---|---|---|---|
| Summary | Essential plans for small projects | Detailed plans for medium scale projects | Complete 3D And Full Set plans |
| Details | Architectural floor plans (main floors) Furniture layout and dimension plans Basic sections and elevations | Everything in the Simple Package Ceiling and roof plans Detailed sections and elevations with material specifications Basic MEP (mechanical, electrical, plumbing) plans if needed | Everything in the Standard Package Full 3D BIM model Professional interior and exterior renderings Complete presentation sheets Detailed construction and MEP drawings |
| Delivery time | 14 days | 29 days | 40 days |
| Number of revisions | 1 | 1 | 3 |
Member since
November 2024
Languages
English
Avg. response time
1 hour
Experienced 3D & 2D artist specializing in high-quality renderings, animations, and virtual interior
Architect,Electrical and Mechanical Designer & 3D Generalist based in Larnaca, Cyprus.
I specialize in architectural visualization, 3D modeling, and realistic rendering for residential, commercial, and landscape projects. With strong experience in software such as Unreal Engine, 3ds Max, Blender, and CAD tools, I deliver high-quality visuals, animations, and detailed project presentations. I focus... read more
I specialize in architectural visualization, 3D modeling, and realistic rendering for residential, commercial, and landscape projects. With strong experience in software such as Unreal Engine, 3ds Max, Blender, and CAD tools, I deliver high-quality visuals, animations, and detailed project presentations. I focus... read more
Questions and answers
A hand sketch, existing drawings, or a basic floor plan is enough to begin. If you have a site survey or reference images, sharing them will help achieve higher accuracy.
You will receive PDF files ready for printing, plus editable DWG/DXF files in organized layers. Additional formats such as IFC, PNG, or JPG can be provided upon request
The drawings follow professional drafting standards and can be aligned to your municipality’s checklist. However, they do not include a licensed architect/engineer stamp. You may need a local professional for permit approval
Yes, I can create full plan sets for houses, apartments, offices, retail spaces, and more. Just provide the scope and requirements.
Each package includes clear dimensions, room labeling, annotations, and standard symbols. The advanced package also includes schedules, legends, and a sheet index.
Simple – 1 revision, Standard – 2 revisions, Advanced – 3 revisions. Additional revisions can be added as an extra service.
Depending on the package: 7 days (Simple), 12 days (Standard), and 20 days (Advanced). Rush delivery is available as an add-on.
Yes, a 3D model preview can be included as an add-on service for an additional cost.
Cad Crowd Billing Security policy
Service quality is protected by Cad Crowd Billing Security policy.
More from Alireza E.
More similar services
See related services
- 3D Design services
- 3D Modeling services
- CAD Design services
- 2D & 3D Design services
- 2D & 3D Modeling services
- CAD Modeling services
- 2D CAD Design services
- 2D & 3D CAD Design services
- Drafting services
- 3D Models services
- AutoCAD services
- Mechanical Design services
- Rendering services
- Product Design services
- 3D Rendering services
- 2D Drafting services
- 2D Drawing services
- 2D AutoCAD services
- CAD Drafting services
- Architectural Design services
- SolidWorks services
- 3D Solidworks services
- CAD Drawing services
- Mechanical Engineering services
- 2D & 3D Drafting services
- 2D/3D AutoCAD services
- 2D & 3D Modeling Solidworks services
- Architectural Drawings services
- 2D & 3D Architectural Design services
- Concept Design services
- Floor Plans services
- 3D Visualization services
- Architectural Drafting services
- Design Engineer services
- 3D Architectural Rendering services
- Interior Design services