Floor plan layouts involve interior design CAD drawing services that show an aerial view of properties without the roof. A floor plan design allows potential investors and buyers to understand and see the essence of the property, the spaces, and the interaction of these spaces. 2D drawing and floor plan designers use these drawings to indicate a room’s layout and the location of walls, doors, and windows. While the main focus of interior design drawings is the layout of the property in its entirety, floor plan design services can show in-built components, including kitchen units, bathroom fittings, and wardrobes in every room within the property.
Table of Contents
Importance of floor plan layouts
Floor plan layouts are critical components of interior design detailing and some of the main deciding factors for most real estate buyers. Many buyers prefer to see and check floor plan layout drawings before they inquire about a particular property. Some even claim that floor plans are more important than the main image or description of the property. On the other hand, most sellers would never consider hiring a real estate agent who doesn’t offer a floor plan right from the get-go. Taking advantage of the expertise that an architectural interior designer can bring to the table can significantly boost the number of potential clients and investors. Listed below are a few advantages of floor plan designs:
RELATED: 3D House and floor plans rates & costs for drafting services companies
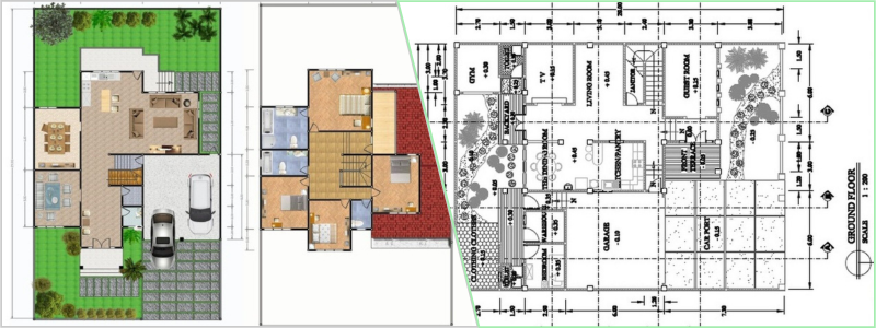
Common types of floor plan layouts
Windows and doors layout drawings
Window and door layout drawings are a type of layout drawing where windows and doors are arranged together with the general layout. These are often presented with more details in a separate drawing.
*Electrical layout drawings
Electrical layout drawings include the layout of devices, units, and devices and the location of all the light switches, outlets, and sources essential to creating an adequate and smart lighting and electrical system in the structure. More advanced electrical layout drawings also include hidden and visible wires and installed transformers all over the space. These drawings are necessary for construction and essential for renovating older properties.
*Furniture layout drawings
While not technically a part of architectural or construction work, furniture layout drawings are essential to interior design. These layouts present the furniture’s schematic top view, shape, size, and location.
RELATED: Why you need to use 3D modeling services to create floor plans
*Plumbing layout drawings
Standard floor layouts from 2D drawings and floor plan design experts also include plumbing layout drawings. These include the different fixtures in the property, like toilets, sinks, bathrooms, and showers. Regarding large-scale construction or repair work, the plumbing layout drawings also present the piping system’s schematics. Floor layouts in residential projects also feature the sewer diagram.
*Wall layout drawings
Wall layout drawings serve as the basis of all different floor plans. These are the schematic wall layout marked with the load-bearing sides essential to change a building’s internal structure. Some advanced wall layout drawings include wall mounting and dismounting positions for renovation and partition plans for interior remodeling. Now that you recognize the importance of floor plan layouts, here are some valuable tips for architects and companies on effectively approaching floor plan layouts and interior design drawings:
Floor plan layouts and interior design drawings: tips for architects and companies
1. Choose the appropriate level of detail and style
Be sure to decide on the correct level of detail and style for the viewer. Architects and companies require a more technical approach compared to the end-users. Avoid wasting your time in making 3D floor plans when a simple black-and-white technical plan is enough. For busy interior design companies, you can’t afford to waste your time adding furniture to your plan if it doesn’t even have to be there.
RELATED: Why are companies and firms moving from 2D to 3D CAD architectural renderings and models?
If your company offers an online design service and a 3D floor plan rendering design services is part of your customized packages, you might want to add a floor plan with texture, color, or even a watercolor illustration because these are more inspiring and informative. Adding a more personal touch to online design services is difficult, which means that technical floor plans would likely look uninviting and cold, even more so if you are not physically there to breathe life into the designs.
When developing a technical floor plan design, make sure you also add a title block with a key and a border to guarantee that your plan will be presented according to recognized drawing conventions. Including a title block and border to floor plans that include texture and color is also essential. On the other hand, illustrated floor plans must not be presented with a title block and border since these are a more creative, relaxed, and whimsical approach to more conventional styles. These floor plans often look great as a standalone document or part of the package for client presentation.

2. Double-check measurements
It is essential to have an effective workflow when producing precise and accurate floor plans. One crucial part of your workflow is using a tape measurer for double-checking all your measurements. Measuring is critical because everyone can make mistakes; you may find errors when you check the measurements. Most importantly, you can correct mistakes before presenting your plans to your clients.
RELATED: How 3D Rendering Services Are Used by Architects for Each Stage of a New Project
You certainly wouldn’t want to encounter the situation of presenting a floor plan layout to your client only to discover that the measurements are incorrect. Moreover, investing effort into creating a floor plan, arranging furniture, and subsequently noticing measurement inaccuracies can be highly exasperating. By their very nature, floor plans are meant to be highly precise and accurate.
Architectural drawing professionals and companies must produce the most reliable and accurate plans possible. You can use tools to create more detailed geometry. By enabling endpoints, you can quickly identify the endpoints of lines, ensuring the precise geometry connection without any gaps or overshooting. Additionally, actions like zooming into the geometry provide a clear view that aids in creating high-quality floor plans.
3. Check and confirm furniture placement
Furniture placement is probably one thing that sets professional floor plan design services for novices. When positioning furniture items, see to it that you consider with extra care how close they are to other things and the walls. For example, when positioning a bed between two bedside tables, it is essential to ensure that the distance between the bed and each bedside table is equal. If you want to put a freestanding bath right in front of a window, the tub should be centered properly.
RELATED: The workflow process for interior 3D rendering at companies & design firms
4. Create straight lines with the axes
Professional standard floor plans are expected to feature straight walls whose corners total 90 degrees, except if they are meant to be at different angles. Floor plans should never have any wonky lines. Use all the axes to achieve this accuracy level when developing your floor plans. The axes serve as the backbone of all the things you do. Try to familiarize yourself with them because you will have a long and productive working relationship with them.
5. Consider proportion and scale
Proportion and scale are other aspects where the tape measure can be helpful. See to it that all furniture items reflect the appropriate size. You must also ensure proper proportion to the room’s size and the rest of the furniture pieces, especially if existing furniture pieces or architectural features will still be incorporated into the new design scheme.
How Cad Crowd can help
You want well-crafted and excellent designs; your customers and clients deserve this. Our designers understand how important it is to make sure this happens. We want to make it easy for you to run your business, build your next residential or commercial project, and entice your audience to engage with the property. We have worked with large companies to solopreneurs to help them find the design talent they need.
Regardless of the complexity of your next 3D floor plan design project, our team is ready to help. We invite you to send us a free quote today!