I offer structural engineering and detailing services (RC, wood and metal)
About this service
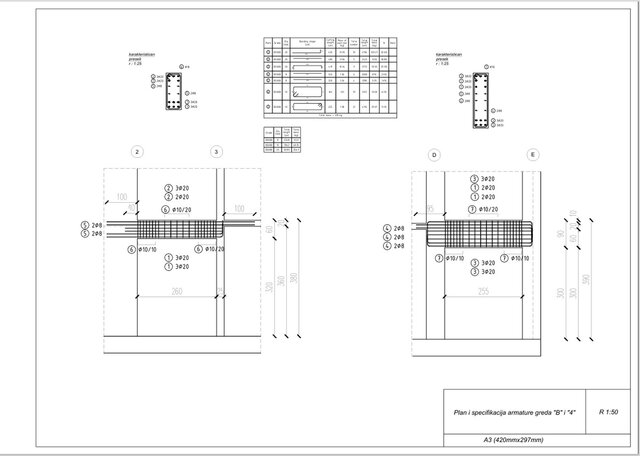
I provide high-precision structural detailing services to bridge the gap between design and construction. Whether working from architectural blueprints or hand-drawn sketches, I deliver:
1) Reinforcement Solutions: Detailed formwork and rebar plans featuring optimized Bar Bending Schedules (BBS) to minimize material waste and streamline on-site fabrication.
2) Multi-Material Connections: Custom design and detailing for structural steel joints (welded/bolted) and timber/wood connections, ensuring structural integrity and easy installation.
3)Fabrication-Ready Sets: All deliverables are formatted for immediate use by contractors and fabricators, including precise cutting lengths, bending dimensions, and quantity take-offs.
1) Reinforcement Solutions: Detailed formwork and rebar plans featuring optimized Bar Bending Schedules (BBS) to minimize material waste and streamline on-site fabrication.
2) Multi-Material Connections: Custom design and detailing for structural steel joints (welded/bolted) and timber/wood connections, ensuring structural integrity and easy installation.
3)Fabrication-Ready Sets: All deliverables are formatted for immediate use by contractors and fabricators, including precise cutting lengths, bending dimensions, and quantity take-offs.
I provide high-precision structural detailing services to bridge the gap between design and construction. Whether working from architectural blueprints or hand-drawn sketches, I deliver:
1) Reinforcement Solutions: Detailed formwork and rebar plans featuring optimized Bar Bending Schedules (BBS) to minimize material waste and streamline on-site fabrication.
2) Multi-Material Connections: Custom design and detailing for structural steel joints (welded/bolted) and timber/wood connections, ensuring structural integrity and easy installation.
3)Fabrication-Ready Sets: All deliverables are formatted for immediate use by contractors and fabricators, including precise cutting lengths, bending dimensions, and quantity take-offs.
1) Reinforcement Solutions: Detailed formwork and rebar plans featuring optimized Bar Bending Schedules (BBS) to minimize material waste and streamline on-site fabrication.
2) Multi-Material Connections: Custom design and detailing for structural steel joints (welded/bolted) and timber/wood connections, ensuring structural integrity and easy installation.
3)Fabrication-Ready Sets: All deliverables are formatted for immediate use by contractors and fabricators, including precise cutting lengths, bending dimensions, and quantity take-offs.
I provide high-precision structural detailing services to bridge the gap between design and construction. Whether working from architectural blueprints or hand-drawn sketches, I deliver:
1) Reinforcement Solutions: Detailed formwork and rebar plans featuring optimized Bar Bending Schedules (BBS) to minimize material waste and streamline on-site fabrication.
2) Multi-Material Connections: Custom... read more
1) Reinforcement Solutions: Detailed formwork and rebar plans featuring optimized Bar Bending Schedules (BBS) to minimize material waste and streamline on-site fabrication.
2) Multi-Material Connections: Custom... read more
I provide high-precision structural detailing services to bridge the gap between design and construction. Whether working from architectural blueprints or hand-drawn sketches, I deliver:
1) Reinforcement Solutions: Detailed formwork and rebar plans featuring optimized Bar Bending Schedules (BBS) to minimize material waste and streamline on-site fabrication.
2) Multi-Material Connections: Custom design and detailing for structural steel joints (welded/bolted) and timber/wood connections, ensuring structural integrity and easy installation.
3)Fabrication-Ready Sets: All deliverables are formatted for immediate use by contractors and fabricators, including precise cutting lengths, bending dimensions, and quantity take-offs. read less
1) Reinforcement Solutions: Detailed formwork and rebar plans featuring optimized Bar Bending Schedules (BBS) to minimize material waste and streamline on-site fabrication.
2) Multi-Material Connections: Custom design and detailing for structural steel joints (welded/bolted) and timber/wood connections, ensuring structural integrity and easy installation.
3)Fabrication-Ready Sets: All deliverables are formatted for immediate use by contractors and fabricators, including precise cutting lengths, bending dimensions, and quantity take-offs. read less
Service offer categories
Construction Drawings
Structural Engineering
Structural Steel Detailing
Software & skills
2D AutoCAD
AutoRebar for AutoCAD
Autocad Advance Steel
Autodesk Robot
Radimpex ArmCAD
Radimpex Tower
+3 more
Member since
December 2025
Languages
English
Avg. response time
1 hour
Structural technician (senior year civil engineering student) professional with 3 years of experienc
I provide high-precision structural detailing services to bridge the gap between design and construction. Whether working from architectural blueprints or hand-drawn sketches, I deliver:
1) Reinforcement Solutions: Detailed formwork and rebar plans featuring optimized Bar Bending Schedules (BBS) to minimize material waste and streamline on-site fabrication.
2) Multi-Material Connections: Custom... read more
1) Reinforcement Solutions: Detailed formwork and rebar plans featuring optimized Bar Bending Schedules (BBS) to minimize material waste and streamline on-site fabrication.
2) Multi-Material Connections: Custom... read more
Cad Crowd Billing Security policy
Service quality is protected by Cad Crowd Billing Security policy.
More similar services
See related services
- 3D Design services
- 3D Modeling services
- CAD Design services
- 2D & 3D Design services
- 2D & 3D Modeling services
- CAD Modeling services
- Engineering Design services
- 3D Models services
- Drafting services
- AutoCAD services
- Mechanical Design services
- Product Design services
- Rendering services
- Mechanical 3D Design services
- 2D Drafting services
- 2D Drawing services
- 3D Rendering services
- 2D AutoCAD services
- CAD Drafting services
- Architectural Design services
- SolidWorks services
- 3D Solidworks services
- CAD Drawing services
- Mechanical Engineering services
- 2D & 3D Drafting services
- 2D/3D AutoCAD services
- 2D & 3D Modeling Solidworks services
- 2D & 3D Architectural Design services
- Floor Plans services
- 3D Visualization services
- Architectural Drafting services
- Design Engineer services
- Mechanical Engineer services
- 3D Architectural Rendering services
- Interior Design services
- Construction Drawings services