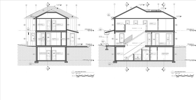
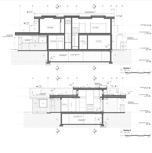
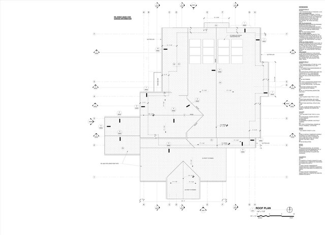
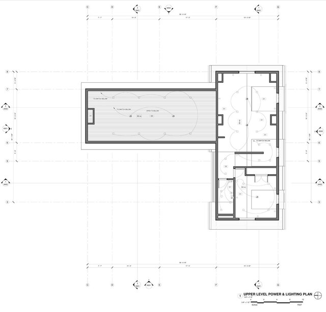
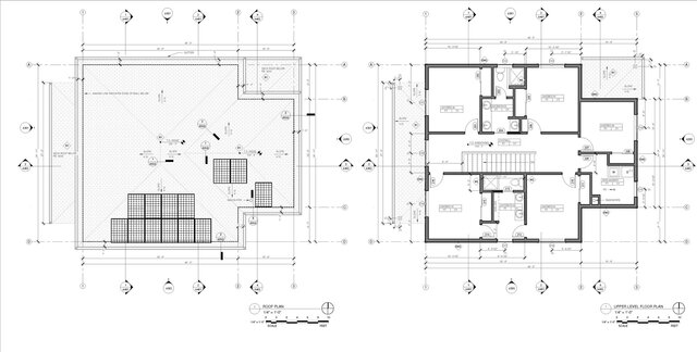
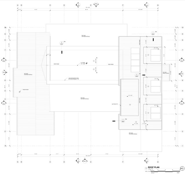
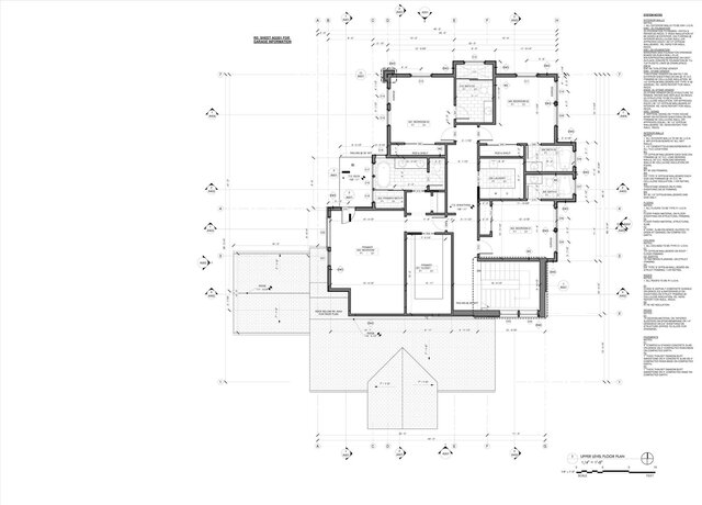
Construction Ready Permit Documents
About this service
This project is focused on clear, accurate, permit-ready construction documents for residential projects of all sizes. With 5+ years of professional experience in architectural drafting, I specialize in turning concepts, sketches, and existing conditions into coordinated drawing sets that are easy for reviewers, contractors, and consultants to understand and build from.
All work is produced in AutoCAD or Revit with an emphasis on constructability, consistency, and code-driven documentation. I prioritize clean layouts, legible annotation, and well-organized sheets to reduce review comments and revision cycles during permitting.
All work is produced in AutoCAD or Revit with an emphasis on constructability, consistency, and code-driven documentation. I prioritize clean layouts, legible annotation, and well-organized sheets to reduce review comments and revision cycles during permitting.
This project is focused on clear, accurate, permit-ready construction documents for residential projects of all sizes. With 5+ years of professional experience in architectural drafting, I specialize in turning concepts, sketches, and existing conditions into coordinated drawing sets that are easy for reviewers, contractors, and consultants to understand and build from.
All work is produced in AutoCAD or Revit with an emphasis on constructability, consistency, and code-driven documentation. I prioritize clean layouts, legible annotation, and well-organized sheets to reduce review comments and revision cycles during permitting.
All work is produced in AutoCAD or Revit with an emphasis on constructability, consistency, and code-driven documentation. I prioritize clean layouts, legible annotation, and well-organized sheets to reduce review comments and revision cycles during permitting.
This project is focused on clear, accurate, permit-ready construction documents for residential projects of all sizes. With 5+ years of professional experience in architectural drafting, I specialize in turning concepts, sketches, and existing conditions into coordinated drawing sets that are easy for reviewers, contractors, and consultants to understand and build from.
All work is produced in Au... read more
All work is produced in Au... read more
This project is focused on clear, accurate, permit-ready construction documents for residential projects of all sizes. With 5+ years of professional experience in architectural drafting, I specialize in turning concepts, sketches, and existing conditions into coordinated drawing sets that are easy for reviewers, contractors, and consultants to understand and build from.
All work is produced in AutoCAD or Revit with an emphasis on constructability, consistency, and code-driven documentation. I prioritize clean layouts, legible annotation, and well-organized sheets to reduce review comments and revision cycles during permitting. read less
All work is produced in AutoCAD or Revit with an emphasis on constructability, consistency, and code-driven documentation. I prioritize clean layouts, legible annotation, and well-organized sheets to reduce review comments and revision cycles during permitting. read less
Service offer categories
3D Architectural Modeling
Drafting and Design Services
Construction Drawings
Software & skills
2D & 3D Architectural Design
2D & 3D Drafting
2D & 3D Floor Plans
This service includes
| Service tiers | Simple $1,050 | Standard $1,850 | Advanced $3,200 |
|---|---|---|---|
| Summary | Small Projects up to 1,000 SF | Medium Projects 1,000–2,500 SF | Large Projects 2,500+ SF |
| Details | Permit sets & construction documents for remodels, additions, or compact spaces. | Permit sets & construction documents for additions, remodels, or mid-size build. | Permit sets & construction documents for new construction. |
| Delivery time | 4 days | 7 days | 14 days |
| Number of revisions | 2 | 3 | Unlimited |
Member since
January 2026
Languages
English
Avg. response time
1 hour
Architectural Drafter
I’m an architectural drafter with 5+ years of professional experience supporting residential, commercial, and public-sector projects. I specialize in construction documentation and permit-ready drawing sets using AutoCAD and Revit, with a strong understanding of construction methods, scale, and code-driven documentation.
In addition to drafting, I can support design development—helping translate... read more
In addition to drafting, I can support design development—helping translate... read more
Cad Crowd Billing Security policy
Service quality is protected by Cad Crowd Billing Security policy.
More similar services
See related services
- 3D Design services
- 3D Modeling services
- CAD Design services
- 2D & 3D Design services
- 2D & 3D Modeling services
- Drafting services
- 3D Models services
- AutoCAD services
- Mechanical Design services
- Product Design services
- Rendering services
- Mechanical 3D Design services
- 3D Rendering services
- 2D Drafting services
- 2D Drawing services
- 2D AutoCAD services
- CAD Drafting services
- Architectural Design services
- SolidWorks services
- 3D Solidworks services
- CAD Drawing services
- Mechanical Engineering services
- 2D & 3D Drafting services
- 2D/3D AutoCAD services
- 2D & 3D Modeling Solidworks services
- 2D & 3D Architectural Design services
- Floor Plans services
- 3D Visualization services
- Architectural Drafting services
- Design Engineer services
- Mechanical Engineer services
- 3D Architectural Rendering services
- Interior Design services
- Construction Drawings services
- CAD Conversion services
- 2D & 3D Floor Plans services