Custom Home Design & Documentation
marygracec
Follow
Hire
Collect
Share
Share with friends & colleagues
Custom Home Design & Documentation design by marygracec
Copy link
Email
Messages
WhatsApp
Messenger
Facebook
X.com
Linkedin
Report
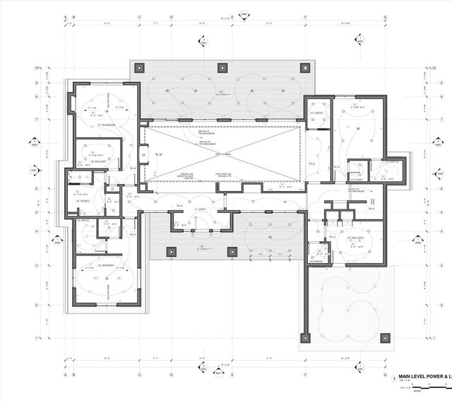
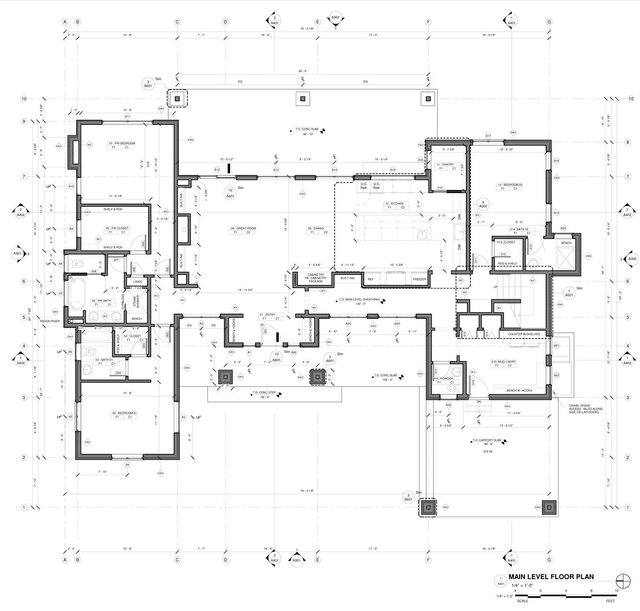
New Construction Custom Home. All documentation created by me.
Published
Jan 3, 2026
in
3D Architectural Modeling
2D to 3D Modeling
2D Drawings and Floor Plans
construction-architecture-design
constructiondocumentation
architechtural-plan
city-permit-drawings
Rendering Images