I create 2D renderings of construction plans, electrical drawings, & Bldg mgmt. footprints

adeotiadediran
Hourly services rate

$21/hour

Hourly service work rate

Availability: 40 hours/week

custom work
Request customized services

If this service doesn’t quite match your needs, reach out for a custom quote. Discuss pricing and deadlines to design a project just for you.

About this service

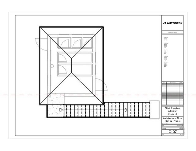
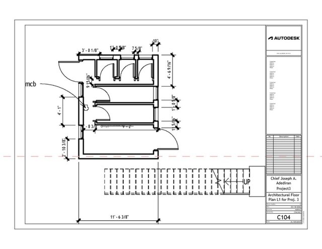
I am able to make for you, your permit ready plans for building floor plans, electrical drawings and plumbing and instrumentation drawings. I can provide your BOM, Project schedules and full description of project scope, delivering to you, top quality drafting services. I also do Finite Element Analysis with the Autodesk solvers. I worked on ORCAD PCAD in designing printed circuit boards PCBs.
I am able to make for you, your permit ready plans for building floor plans, electrical drawings and plumbing and instrumentation drawings. I can provide your BOM, Project schedules and full description of project scope, delivering to you, top quality drafting services. I also do Finite Element Analysis with the Autodesk solvers. I worked on ORCAD PCAD in designing printed circuit boards PCBs.
I am able to make for you, your permit ready plans for building floor plans, electrical drawings and plumbing and instrumentation drawings. I can provide your BOM, Project schedules and full description of project scope, delivering to you, top quality drafting services. I also do Finite Element Analysis with the Autodesk solvers. I worked on ORCAD PCAD in designing printed circuit boards PCBs.
I am able to make for you, your permit ready plans for building floor plans, electrical drawings and plumbing and instrumentation drawings. I can provide your BOM, Project schedules and full description of project scope, delivering to you, top quality drafting services. I also do Finite Element Analysis with the Autodesk solvers. I worked on ORCAD PCAD in designing printed circuit boards PCBs.

Service offer categories

2D to 3D Modeling

Software & skills

2D Electrical Design Drafting Services
adeotiadediran
Toronto, Ontario, Canada – 4:29 p.m. local time

Member since
September 2024
Languages
English
Avg. response time
1 hour

2D AutoCad Electrical Drawings Draftsperson

• AutoCad Certificate (1996) – a 6 weeks program
• Familiar with working on AutoCad Electrical 2024 & AutoCad 2025
• Professional Engineer Washington State USA (2009)
• Accredited Engineer Nigeria COREN (2006)
Hourly services rate

$21/hour

Hourly service work rate

Availability: 40 hours/week

custom work
Request customized services

If this service doesn’t quite match your needs, reach out for a custom quote. Discuss pricing and deadlines to design a project just for you.

Billing Security Policy
Cad Crowd Billing Security policy

Service quality is protected by Cad Crowd Billing Security policy.