DWG files are one of the most common file formats in the CAD design world. They are used for storing two and three-dimensional design data in CAD drawings. DWG files allow you to store vector files, maps, photos, and geographic information.
In short, any information that can be processed by a CAD program can be stored in a DWG file. Created in 1982 by Autodesk way back when they first launched the AutoCAD software, DWG files serve as AutoCAD data files, which are the default file format that Autodesk uses to create and save files. It is also a native format for other CAD packages including IntelliCAD, Caddle, DraftSight, and Open Design Alliance compliance applications.
Unlike the equally common DXF files that are supported by all CAD software, DWG files can only be read by a third-party application if a license or API is purchased from Autodesk. The DWG technology environment has the capability to draw, annotate, m easure, and render drawings, which makes it an integral part of various CAD products.
What You Need to Know about DWG Files
The DWG file format is not only limited to vector image data, which serves as an instruction to the CAD application on how to display or render the drawing. It can also store metadata, which is used for saving various information such as file data, client data, location data, and author information.

Any information entered into a CAD program can be stored in a DWG file, and it is also open to all sorts of images from maps and animated walkthroughs to building specifications and dimensions for mechanical parts. DWG has applications across a range of industries as well, coming into play in everything from video game design to architecture. In fact, it’s widely used by architecture and CAD design freelancers.
Known as a proprietary file format, DWG is specifically designed to work with AutoCAD rather than to function as an open standard across CAD software. In spite of this, the format is supported across a range of CAD programs that can also be viewed without an AutoCAD license.
However, the DWG format is subject to versioning, which means that every few years, a significant adjustment is made to the file format as it adapts to technical advances and changes in software. The complicated part of this is that the old versions of AutoCAD will not be able to open files saved to the newer versions of DWG, but new versions of AutoCAD will be able to support any DWG file, including the first version of AutoCAD in 1982.
Although you may run into difficulties trying to read the latest DWG files using an old version of AutoCAD, the reverse is not true. Programs like AutoCAD are quite expensive, so agencies choose to update them at different rates.
Since it might be difficult to know at first glance which DWG update has been used in making a file, Autodesk produces a useful tool that allows you to see all the information associated with it.
DWG Columns for Explorer
Consequently, DWG Columns for Explorer is a program that shows users key data like comments, custom properties, and revision numbers in addition to displaying the relevant version.
The DWG format ensures that all designs are correctly positioned on their respective construction sites irrespective of where in the world they are. This allows 3D CAD services, designers, engineers, and game artists to draw to real-world coordinates and also let them retain coordinate information so that drawings maintain their real-world position regardless of where they are imported to or exported from.

This extends to both two and three-dimensional information, which can easily be exchanged between drafting programs such as Vectorworks.
Using DWG to keep all files positioned on the same coordinates enables quick cross-referencing between different disciplines, which result in improved project collaboration.
For instance, a DWG file containing the instructions for mapping lampposts can be directly transferred on top of a plan of the landscape so that when the drawings align, it will be clear whether the light is positioned effectively.
How the DWG File Type Is Used in Different Industries
DWG files are used by various industries that use computer technology for design. Industries like mechanical engineering, game design, architecture, and product design all use DWG files to store information regardless of content or image type. These industries have various ways of using DWG files in CAD drawings.
Engineering Industries
CAD applications play a major role in all branches of engineering, and almost all drafting services work is produced on a design application and subsequently saved in DWG files.
Some AutoCAD design services use AutoCAD Civil 3D, which is used for infrastructure modeling; AutoCAD Electrical, used for designing control systems; and AutoCAD Map 3D, for geographic information systems.
Since CAD programs and DWG files are the ultimate tools for designing control systems, users need only to select the desired components and plug it into a schematic which includes AutoCAD electrical and other CAD software with complete electrical symbol libraries.
DWG files are used by all branches of engineering. Civil drafting services use it for infrastructure modeling including surface grading, pipe design, surface rendering, and for road design. Mechanical engineers also use it for design parts and to run simulators, allowing for multiple iterations with producing physical prototypes.
Electrical engineers focus more on a simple 2D draft for their electrical schematic drawings. Using DWG files is an essential tool for automating electrical design tasks.
Graphic Design
A drawing design is usually made up of elements like polygons, lines, and text, which are all encoded in the DWG file format. Anyone working on any design could use DWG files. These files play a significant role for animators, fashion designers, and industrial designers in exporting designs from a simpler graphic design program to advance ones and from 2D drawings to animation projects. To make their design more composed and professional, animators can take architectural plans and export them to advanced modeling applications.
Game Making
CAD software and DWG files are essential to the game design process, which is subdivided into three key parts – art, game mechanics, and story development. Game designers lay different components, add textures, and transport them into animation programs to build complex figures. Since DWG drawings are made up of objects that can be easily duplicated and edited, it makes it very easy for game designers to be creative.
For instance, a car design can be saved as an object in the DWG format and have it drive by in multiples scenes. Modern game development requires many tools and techniques which constitute the reasons why developers look for software that can support the workflows of their team and build beautiful virtual worlds with efficient performance
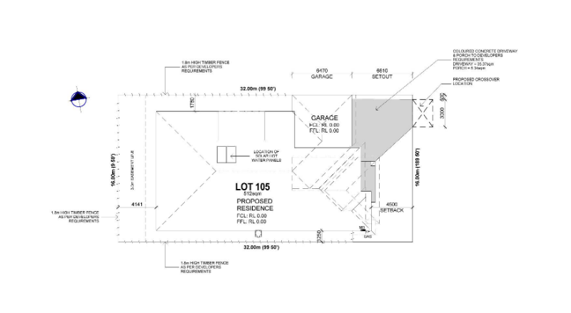
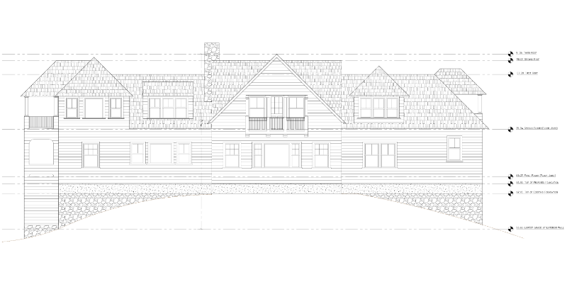
Architecture
DWG files are very ubiquitous among builders, contractors, and architects, which make it rare for them to make use of any other formats. Beyond the squares and straight lines used to mark out different rooms, keynotes can also be added to the specific materials that will be used in the construction process.

With 2D DWG files, architects can analyze a building’s components, generate three-dimensional renderings of the building, calculate the load levels of every support structure, and simulate different designs. Some architecture CAD software does come with templates and a library of components which serve as a platform for anyone with the basic CAD knowledge to design their floor plan.
Why Is DWG so Vital to These industries?
The use of DWG files by all the above-listed industry serves various purposes. Some of these benefits are:
Simulation
With DWG files, the need for costly physical prototypes is reduced, and consequently, they optimize designs for performance and material cost.
Marketing Communications Material
With DWG files, designers can illustrate the product to fit within the context of a customer’s need, for instance, a bicycle can be illustrated gliding along hills.
Post-Production
A drawing file can be quickly repurposed for user manuals, installation instructions, or maintenance documentation with the help of a DWG file. This makes DWG a useful tool for the sales team, field technicians, and customers.
Conceptual Design
Concepts can be iterated quickly, and elements of other designs reused as starting points, which brings ideas to life by sketching them first and sharing visualizations with others.
How to View and Edit DWG Files
DWG files are flexible and can be view and edited without AutoCAD software. Web apps like the A360 viewer, AutoCAD 360, and DWG TrueView can also be used to view DWG files with other CAD applications that support DWG.
It is not all of them that include the functionality to make annotations to DWG files or to convert them into different file formats, so in case you need to make edits, you will need full CAD software packages that support DWG.
DWG files are one of the most ubiquitous file types within the CAD industry that allow users to store various dimensional design data for use in CAD software, which will enable you to store vector entities, maps, and even photos. This makes DWG files has application across a range of industries from game design to engineering.