16 x 32 IN Law Apartment Design

in Architectural Design held by carlas
Contest Closed
  • Open
  • Choosing Finalist
  • Ended
Description:
I will be adding a 16x 32 In law apartment to my son's garage. This is going to be a DYI build and looking for modern but simple floor design.
Wants:
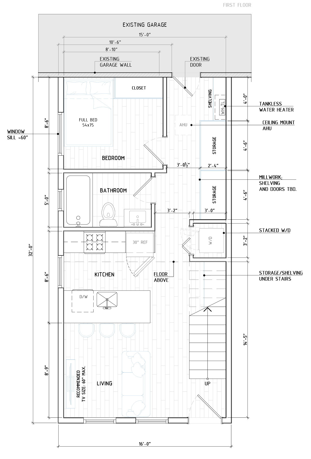
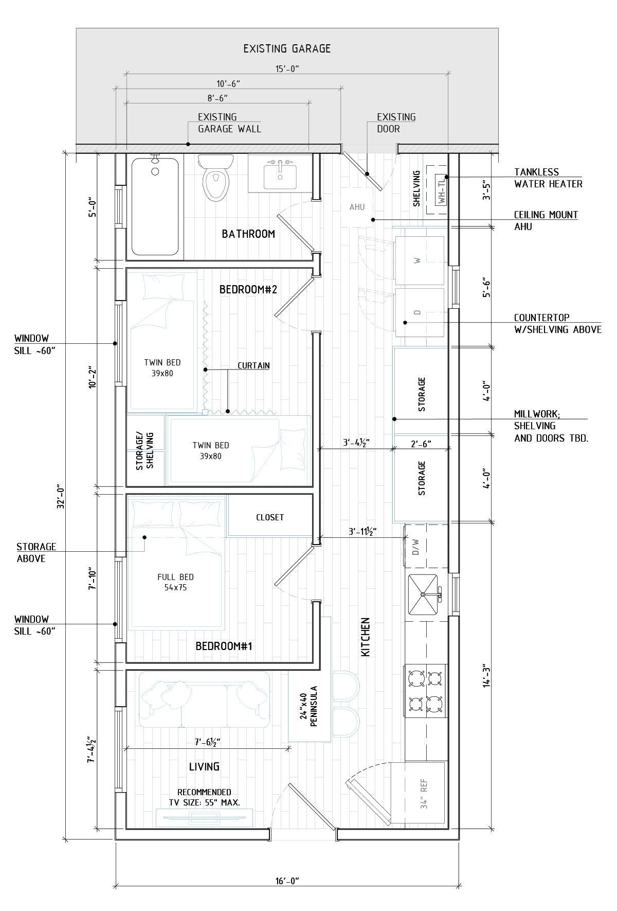
There will be two doors one will be 10.5 feet from the back of the house the right side, this is the entry point to the garage, there is a door here already. The other will be the front of the house. THe front and back are the 16 foot sides, the left and right walls are 32 ft. I want the design to be rustic but modern. Open Kitchen/Living (no formal dining). Penisula or island with two bar stools for table. One Bathroom, soaker tub w/shower. Master bedroom, no closet want a wardrobe around the bed, 2nd bedroom for two grandkids that visit monthly, with two single. beds designed in a manner to give both privacy. I am thinking maybe a thin dividing platform with a window pass through they can close that also has some shelves. Tankless hot water heater. Lots of Storage. Then a combined pantry/laundry/closet. Colors I perfer grays/greens/blues and wood tones. Iam open to a loft instead of a second bedroom, if the cost would be the same of less in the build. This space is really just for the grandkids.
Additional Information
To clarify i am currently just looking for floor plans to see what i like, once i pick a winner i will then move forward with them on the more detailed full blueprints. Actually 3D renders of possible layouts, so i can tell what it will look like. the kids rooms should be small even if we have to stack beds or something don’t want this taking up a lot of room in the house because they are only there a weekend a month

i am attaching pics of current garage. the addition will be at the end with all the overgrowth in the pics. that is the entry door from the garage. it will be 10.5 from the back of the house on the right side. the other door should be i. the front of the house which will be the other 16ft wall.

Entries

= Buyer's Rating
#33 in law apartment by clintsar
#32 16 × 32 ft Accessory Dwelling Unit (ADU) – 3D Model by fahasoavanaa
#30 In Laws Apartment Design by edwards7
#29 floor plan by edwards7
#28 floor plan by M.Ahmed
#27 16 x 32 IN Law Apartment Design by RanitSaha
#26 16x32 Dwelling Unit - two story by DynamoClock
#23 16x32 Dwelling Unit - one story by DynamoClock
#22 InLaw_16x32 by RanitSaha
#21 16 x 32 IN Law Apartment Design by amirs3515
#20 Submission drawing by rizwan9
#18 floor plan by ErShubham25
#16 Single Floor Mother-in-Law Suite with Bonus Room by braxtonm
#15 Ok design engineering and constructions by ikhideo2
#14 In-Law Apartment - Concept Stage by tarchf
#13 In law apartment by wiclifjillo
#11 FLOOR PLAN PROPOSAL 2 by jacquelinef
#8 Apartment 16-32 by Lahcen
#7 apartment plan by clintsar
#6 Home Design by Architectanandshinde
#5 In Law Apartment by Mutahar
#4 inlaw by Robert_Holden
#3 Apartment 16-32 by Lahcen
#2 IN LAW APARTMENT by jacquelinef
#1 inlaw by Robert_Holden

Discussion

RanitSaha

Designer

Tue, 02 Sep 2025 14:58:58 +0000
Great, the best software for floor or blueprint design is AutoCAD. I am submitting the best floor layout based on your requirements. I hope you like it, and once you&;ve observed it, I assure you that you will like it.

braxtonm

Designer

Fri, 22 Aug 2025 21:54:22 +0000
I accidentally submitted 2 of the same designs, Mother in Law Suite with Loft ( & 17). Please omit one of them.

Eldershard

Designer

Wed, 20 Aug 2025 21:08:29 +0000
Could we get some ratings and/or feedback about your likes and dislikes for the current submissions.

Robert_Holden

Designer

Sun, 17 Aug 2025 12:11:53 +0000
I can appreciate not being worried about "AHJ, Authorities Having Jurisdiction". Codes are minimum requirements for occupancy. But without a permit you&;ll be surprised at the next tax assessment. Not to worry you, but as an example; even a shed erected overlapping the minimum offset from a property line is subject to removal. //Tennessee&;s residential building codes are primarily based on the International Residential Code (IRC), with some local amendments. A permit is generally required for most construction, alteration, or repair projects, including new buildings, additions, and substantial repairs. Minor work like painting or routine maintenance typically does not require a permit. //

carlas

Buyer

Sat, 16 Aug 2025 22:01:41 +0000
not worried about codes or DY in this so we’re not getting it inspected. The house is completely paid for they’re not gonna be any mortgages or anything involved.

Robert_Holden

Designer

Sat, 16 Aug 2025 14:41:12 +0000
Thank you for the pics and information. If I understand, this is to be a new build addition to the existing garage-shed structure (I had misinterpreted it as upfitting insided an attached garage to create an in-law suite). The 16 foot width is a constraint because of the buildable area remaining between the left side of the existing garage-shed and required code offset to the property line. The new roofline will be new gable to above existing gable with flashing on the new exterior wall to the existing roof. A half story will accommodate guests.

carlas

Buyer

Sat, 16 Aug 2025 06:46:16 +0000
i have submitted photos and added to description
Fri, 15 Aug 2025 18:06:46 +0000
Your project sounds amazing! I can design a rustic-modern layout with the two-door setup, open kitchen/living area, bathroom with soaker tub, master with wardrobe, and a creative second bedroom or loft for the grandkids. I’ll also include plenty of storage, your preferred colors, and space for a tankless water heater. Once you share the garage photos Friday, I can finalize the plan to fit your DIY build.
Thu, 14 Aug 2025 08:30:26 +0000
I fully understand your project but to be clear it&;s just a floor plan,no electrical and plumbing plan and I will also need a i will be need a rough skecth of the drawing
Wed, 13 Aug 2025 19:12:44 +0000
It&;s not entirely clear what you need. Judging by your words, you need a full-fledged apartment project. Or just a floor plan? I think it would be worthwhile to attach a photo of the existing garage. That way, the participants will understand you better
Wed, 13 Aug 2025 13:10:26 +0000
I need a rough sketch of the garage so that I can place windows and doors in optimal spots to join the existing building. Additionally, does your municipality require prior approval to build? If so, you would need a highly detailed plan, and 120 may be a little less than most architects or drafting technicians want.
Wed, 13 Aug 2025 12:48:57 +0000
How detailed do you want it to be
Also, how many poly count
Tue, 12 Aug 2025 15:45:16 +0000
Do you have any existing floor plan so that the window and door placement could be better understand in the floor plan design?

Similar Contests on Cad Crowd

House Plans - Architectural Drafting & Freelance CAD Design
translate paper plans to CAD (DWG) format. Must ensure that scale is identical ratio to paper scale 1/4" = 1' scale.
BUILDING BLOCKS
Sketched drawings need to be CAD'd. Four floors of retail. Cad plans are available of old building for foot print. Require the following four cad plans (general layout showing furniture). Deadline 29th of MAY 2013
sriraam
Building Plan Elevation Electrical layout Building 3D Views Interior & Exterior Designing Works, walk through
Bubble tea container shop
Hi everyone, I would like an architectural design for my future bubble tea shop. The shop will be made out of 20ft container. I would like it to have fun pastel colours and a sitting area for customers to enjoy their beverages.
Modern 2D Floor Plan for Residential House
I am a professional Architectural & Structural Designer with over 10 years of experience in creating high-quality CAD drawings and models. I specialize in delivering: Accurate 2D floor plans, elevations, and sections Detailed structural drawings (beams, columns, slabs, foundations) Clear, editable files in DWG, PDF, or requested formats My focus is on accuracy, functionality, and aesthetics—ensuring each design meets construction standards and client requirements. I provide timely delivery with professional detailing and presentation to make your project ready for implementation. If you’re looking for a reliable, detail-oriented, and creative designer, I’m here to bring your vision to reality