An architectural project, either big or small, involves quite a lot of construction drawings. Even for a relatively simple renovation or interior redesign, you might be surprised to find out that it can take dozens of technical drawings and other essential documents just to get things started, before the actual construction begins.
Among these important documents are design drawings and shop drawings, which may look somewhat similar but serve different purposes in different stages of the project. However, they are connected to each other because design drawings are used as the reference documents to draft shop drawings. You can also say that the latter is the refined version of the former.
If you’ve worked in the construction industry for some time, you should be able to tell a design drawing from a shop drawing easily–no problem at all. But if you’re a client and have never been involved in a construction project before, you’d probably be hard-pressed to understand the differences at a glance. This is no small matter considering their importance, but there is a simple solution for this: design consultation. And the consultant doesn’t even have to be a big-name designer or architect; a freelancer will do, so long as you know where to find the right one.
Cad Crowd is a great starting place for you, where you’ll find over 94,000 experienced 3D professional designers, engineers, and architects offering their services, including general architectural consultation, at affordable rates while still being able to meet your project standards.
🚀 Table of contents
The basics of design and shop drawings
To get a good grasp of how design drawing is different from shop drawing, first, know what each of them really refers to.
Design drawings
It takes proper planning to design an architectural component. And if the component in question must be prefabricated elsewhere, the architect (sometimes a designer or an engineer, depending on who’s in charge of the component) has to start with a design drawing. This is why some people refer to design drawings simply as concept drawings. No matter which term you use, the drawings primarily work as a general illustration to help convey the design aesthetic.
A design drawing sets the general idea of an architectural component. Take, for example, a custom drawer nightstand; the design drawing of the furniture should provide a clear visualization of its shape, dimensions, materials, and placement inside the room or building. At the very least, it needs to answer some simple questions, like:
- How wide and tall is the nightstand?
- What is it made of?
- Will it be placed against the wall?
- Does it have hidden compartments inside?
- Should it provide a convenient path to install electrical wiring for a lamp?
- Does it need water-resistant finishes?
- If it uses metal construction, what kind of alloy should be used?
- Are the materials safe and in compliance with relevant codes?
The answers to those questions might actually give the contractors a rough idea of how much the prefabrication will cost and how to allocate the resources appropriately. However, all of those are still subject to change because architectural drawing services are generally less specific, and the details are insufficient to proceed with the actual prefabrication. It’s just a broad overview of a design, which must be further refined and clarified by the contractor and the manufacturer.
RELATED: How 3D commercial rendering services help present commercial architectural projects

Shop drawings
Think of a design drawing as a product image attached with only the general specification, like dimensions and features, whereas a shop drawing contains the instructions on how to build the components and assemble them so that it appears identical to the image; there’s even an installation guide, too. It’s actually a pretty good analogy, although in reality, shop drawing isn’t meant for end-users but for manufacturers to fabricate the entire product from scratch.
The main point of a shop drawing is to translate the design intent into an actionable plan. It takes the general idea from the design drawing and injects it with a lot more details. At the end of the process, a shop drawing serves as an instruction to manufacture the parts, assemble them together, and install the final product in the intended place.
Let’s refer back to the nightstand example above. All the aforementioned questions are superficial in nature; they touch mostly on the rudimentary aspects of the design. Shop drawing services dig deeper into the technical sides of it, and ask some very specific questions indeed:
- What type of wood is the material? Is it the same kind of wood all around?
- What kind of surface finish should be applied? Is there any specific instruction about color?
- What type of drawer slide should I use? Should all drawers have the same mechanism?
- How long are the pocket hole screws? Is it possible to use glue when possible?
- Does it have built-in lighting? If so, where does the wiring go?
It’s all that, and everything else in between. And because the shop drawing is a stand-alone document, it still has to include all the information (the general specification) already stated in the design drawing.
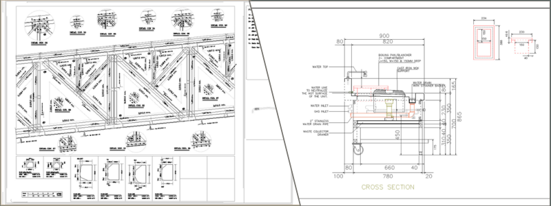
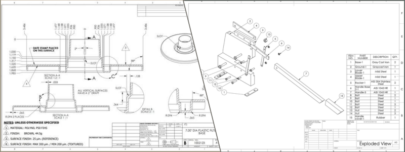
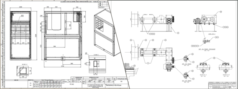
At its core, a shop drawing is an in-depth guide on how an architectural component must be built. It contains a detailed depiction of every part of the product and how those parts are assembled. Of course, the illustration is heavily annotated, with every nook and cranny getting its own close-up view to reduce the chances of mistakes. All individual parts, including the gaps between them, are marked with measurements on every side. It also has a material legend on every sheet and additional notes wherever necessary. In fact, the only thing that prevents it from being a how-to guide is that it doesn’t list all the tools you may need for the job. The manufacturer can use all the tools they have to make the components, so long as the final result is exactly as intended.
A shop drawing isn’t just a simple diagram, but a series of schematics to visualize how an architectural component is assembled together from many different parts. One component may call for multiple schematics; for instance, the shop drawings for a drawer nightstand can include dozens of sheets to illustrate the design from various angles such as plan view (bird’s eye perspective), elevation view (showcasing the product from the front, back, and sides), section view (cut through or cross-section), detail view (close-up image of specific parts), and sometimes isometric view (three-dimensional image for complex shape). In short, a shop drawing is a comprehensive schematic for architectural design firms to illustrate how a specific architectural component will be fabricated, assembled, and installed.
Key differences
Design and shop drawings share some similarities, but there are probably more differences between them than you might think.
| Aspect | Design drawings | Shop drawings |
| Feature | A concept, or an initial design idea, to illustrate how an architectural component is supposed to look. | Technical diagrams to help fabricate, assemble, and install an architectural component. |
| Purpose | Convey the design intent and provide an overview of the aesthetic quality. | Convert the design intent into an action plan or a fabrication instruction to be used by a manufacturer. |
| Details | Superficial details only, such as overall dimensions and materials. | Heavily annotated for dimensions, types of materials, wiring placement, finishes, parts model and number, and assembly instructions. |
| Creator | Architects, engineering design experts, or designers, depending on who is in charge of the components in question. | Contractor, supplier, and manufacturer. They may hire drafters to produce the drawing on their behalf. |
| Audience | Stakeholders include clients and contractors. Design drawings might be used as legal documents to obtain permits, so they’re for local authorities as well. | Component fabricators or manufacturers use shop drawings as reference documents to assemble and install the products. Shop drawings must be reviewed and approved by an architect or an engineer. |
| Timeline | Early design development phase, before construction and hiring a contractor. | During the construction phase, but only after the design is approved and finalized. |
RELATED: How to hire the best freelance CAD designers: A services guide for companies
Does it mean the main difference is all about a sketch and a diagram?
It surely seems like so, but it is not entirely correct either. Remember that a “sketch” refers to a freehand drawing, often quickly done to record an idea or two to be revisited at a later time for refinement. A diagram can also indicate freehand drawing, but it’s usually more illustrative with some lines, symbols, and icons, usually to develop a design logic. Both sketches and diagrams can be developed into a much more presentable form to describe a design.
Finalizing a project, at least in architecture, is likely a time-consuming and expensive process. One of the most effective time-saving measures is to resolve the design early on in the project, before the construction even begins. The more complex the project, the more resource-demanding it is. Sketches and diagrams are quick methods to explore design ideas, and architectural design experts can create them without being bothered with certain formats, detailed dimensions, scale, and so forth. They can just grab a pencil and start visualizing rough ideas; it doesn’t really matter whether the sketches end up being used or quickly discarded.
However, those that don’t get quickly discarded often become the central idea for a design solution. Although a sketch might be inaccurate and a diagram is too rudimentary to be taken seriously, they’re ground zero–the starting point of a design development. Despite all that, they’re not official documents in an architectural project, so they must be transformed first into proper design drawings before getting finalized as approved shop drawings.
Converting a design drawing into a shop drawing
You’ll typically see the general specification of an architectural component in a design drawing, but that’s not really useful when you’re trying to fabricate the product from scratch. The manufacturing design service needs detailed information about the components’ features, functionalities, mechanisms, parts’ dimensions, and even ornaments if needed. When you have to produce a comprehensive shop drawing based on a relatively simplistic design drawing, you may need to go the extra mile to figure out all the details beforehand. The workflow for this task should look a lot like the following list.

RELATED: Best 50+ freelance jobs sites for architects and finding remote work for architectural designers
Get a good grasp of the design intent
You can’t really understand a design just by looking at some lines and shapes on a piece of paper, even if they form a three-dimensional image. Sure, an isometric view gives an idea of the aesthetic, but it contains little useful information about how to actually build the design.
Let’s use the drawer nightstand example again; instead of staring at the design drawing for hours, you’ll use that time more productively by also studying the floor plan. At least you’ll learn where the nightstand will be placed in the bedroom, how far the spot is from the wall, where the electrical outlets will be, and so on. Don’t be surprised if the design drawing has some unclear information (such as conflicting details, missing annotations, or specific parts open to interpretation). It’s not that uncommon, and the architect knows that as well. This is why a contractor/manufacturer is allowed to issue RFI (requests for information) to resolve any kind of uncertainties.
Make sure you have all the data
To produce a shop drawing, you need much more information than what’s typically provided in the design drawing. Among the most crucial information is the actual site condition from architectural site plan services. This is especially true if the project is a renovation where some of the existing structures are supposed to be left intact. Field survey data can reveal the discrepancy (if any) between the design drawing and the actual construction site, which affects how the components should be fabricated and installed. Remember that a shop drawing is a reference to build prefabricated components, so when the products arrive at the construction site, no one expects to do any further modifications.
Some products may require proprietary parts like brand-specific finishes, mechanical equipment, glass materials, lighting, or other electronics. Because every item’s specification in the shop drawing must be accurate, there’s nothing wrong with cross-checking the details with the manufacturer’s data for those parts. Yes, it adds another step before you even start drawing, but it’s indispensable for the sake of accuracy.
The drawing process
And now the actual drawing begins. It has been said time and again that accuracy and readability are of the utmost importance, so be sure to mark every line and shape of the product with the correct measurements. This includes the dimensions of the overall product and individual parts. Indicate (clearly) the location of every hole, cutout, and connection between parts. The distance between features, along with tolerances, is equally important. If there are dimensions that require on-site verification, they must be noted as well. CAD design services are perfect for this.
Not every product has to arrive at the site assembled. Perhaps there are components that must be assembled on-site because of their sheer size, anchor installation, alignment process, etc. In such a case, the shop drawing has to include comprehensive step-by-step installation instructions. Don’t forget to include the Bill of Materials (BOM), as it lists all the individual parts or materials required to build the product. Each part is numbered or coded to correspond with the callouts on the annotation.
As previously mentioned, a shop drawing for any product may contain multiple sheets to illustrate the product from different perspectives, such as front, side, back, top, and cross-section views. If the shop drawing is a revision, include the date of the revision and a brief description of the changes made from the previous version.
Review and approval
At the end of the process, the shop drawings are reviewed by the architect or engineer, and the approval is granted, unless another revision is necessary. The review is usually done in two steps: internal review and submission for approval. An internal review involves an evaluation by the contractor or the manufacturer (because the actual drawing is usually done by a professional drafter on their behalf). For a complex system, such as plumbing, HVAC, or structural steel detailing services, an internal review might include an analysis by an engineer, too.
Submission for approval happens when the shop drawing is sent to the architect or engineer in charge of the project. This is the final step to make sure the shop drawing is correctly and accurately interprets the design intent. There should be no deviation from the design drawing. Otherwise, it must be revised.

RELATED: Commercial 3D rendering rates for buildings, services costs, and pricing for architectural firms
Takeaway
Both design drawings and shop drawings are essential technical documents in an architectural project. Each has its own specific purpose, but they’re interconnected throughout the duration of the project. If the design drawing offers the big picture of how the design is supposed to look and feel, the shop drawing takes everything up a notch by providing detailed instructions on how things should be fabricated, assembled, and installed.
Finalizing the design and construction method often takes a lot of back and forth between the two documents, but the process makes sure that the final product (whether furniture pieces, doors, windows, trusses, electrical components, structural steel, or anything else that requires prefabricated components) fits perfectly into the overall design by shop drawing experts.
If the prefabricated components are custom-made, rather than ready-made, the shop drawing must be drafted based on the design drawing. Manufacturers or suppliers cannot use pre-existing templates because the fabricated components will probably conflict with the design intent.
How Cad Crowd can help?
If you need a more elaborate explanation about the difference between the two construction drawings, you can always reach out to Cad Crowd, where you can reach out to architectural or design consultants who are always ready to meet your business standards for that advanced. Don’t wait any longer. Leave a message to get your FREE quote now!