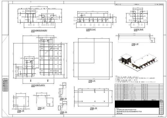
Pump Base Support & Alignment – Retrofit CAD Detailing

Mechanical support and pump base adaptation developed for retrofit in an existing industrial installation. The scope included 3D modeling, dimensional adjustment, alignment verification, and fabrication-ready CAD drawings to ensure proper installation, mechanical integrity, and alignment with existing equipment. Representative industrial retrofit project. All sensitive information has been removed.
fabrication-drawings pump-base mechanical-support industrial-retrofit equipment-alignment