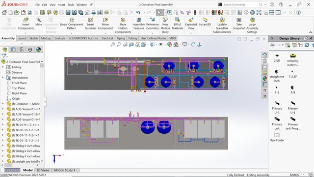
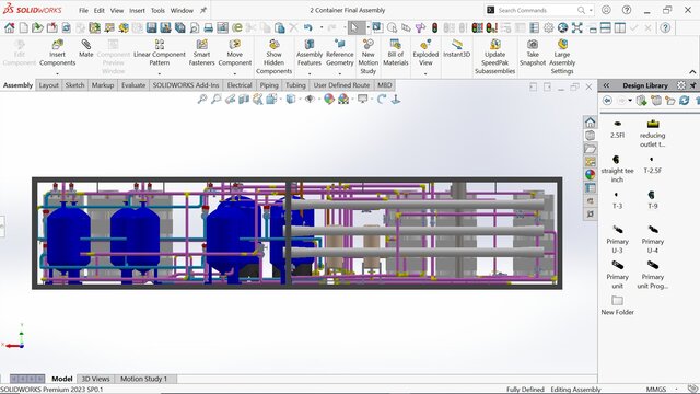
Piping, P&ID, isometric piping, Water Treatment plant 3d modeling
Balal
Top Designer
Follow
Following
Hire
Collect
Share
Share with friends & colleagues
Piping, P&ID, isometric piping, Water Treatment plant 3d modeling design by Balal
Copy link
Email
Messages
WhatsApp
Messenger
Facebook
X.com
Linkedin
Report
Piping and P&ID, Isometric piping, piping 3d, water treatment plant 3d design and printing
Published
Aug 23, 2025
in
2D CAD Drafting Services
2D CAD Design Services
2D to 3D Modeling
p-id
pipe-and-instrumentation-designs
piping-arrangement
water-treatment-plant
piping-3d-model
Rendering Images