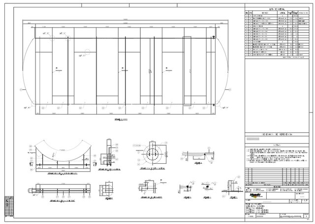
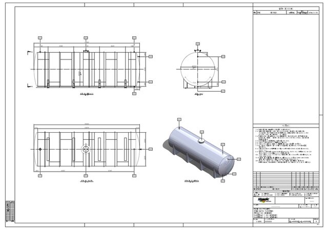
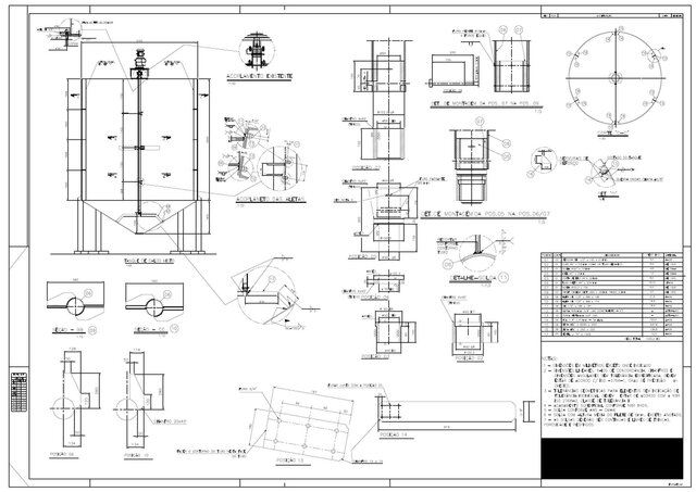
Industrial Water Storage Tank – Fabrication Drawings

Large-scale industrial water storage tank developed for manufacturing and installation. The project included general arrangement, sections, isometric views, and fabrication details to support shop manufacturing and on-site assembly. Representative project with confidential information removed.
fabrication-drawings storage-tank industrial-equipment steel-tank