Detached ADU – Complete Permit Drawing Set (Architectural, Structural & MEP)

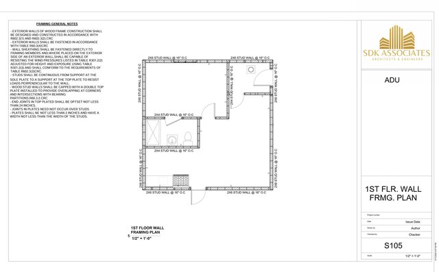
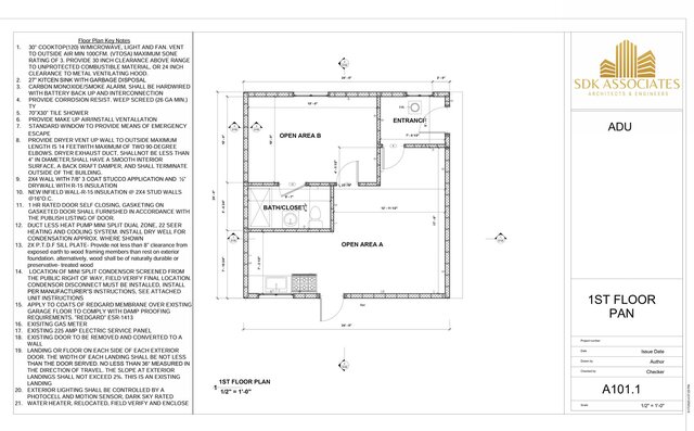
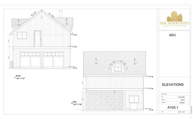
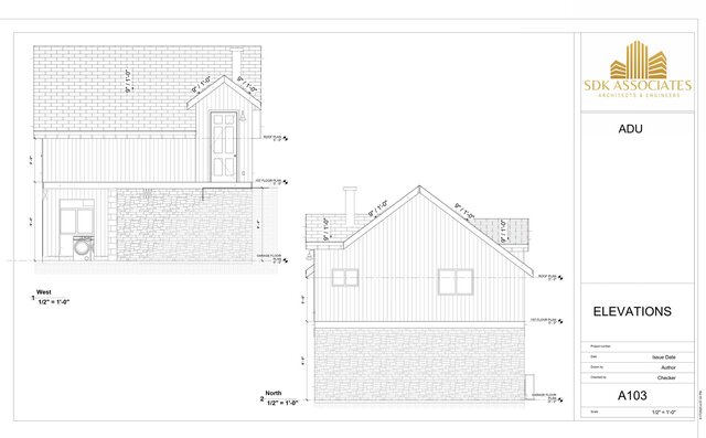
This project involved the preparation of a complete permit-ready drawing set for a Detached Accessory Dwelling Unit (ADU) in compliance with local building code requirements. I delivered a coordinated set of Architectural, Structural, and MEP (Mechanical, Electrical & Plumbing) drawings suitable for city permitting and contractor execution.Scope of Work Included: Architectural Layouts Floor plans, roof plan, elevations, and sections with material specs Structural Design Foundation plan, framing layout, structural notes, roof framing & load path coordination (based on IBC/IRC + local code) MEP Drawings HVAC layout, lighting & power plan, plumbing schematic, fixture schedules Code Compliance Drawings prepared to meet building, energy, and zoning requirements per local U.S. jurisdiction Details & Annotations Included wall sections, connection details, general notes, and schedules for permit submission
revit archictectural-design revit-mep-bim-services structural-2d-drafting-and-design-services