Architectural design of a semi-detached residential

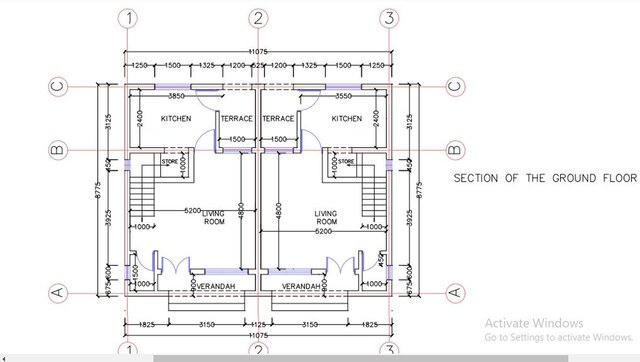
I designed the ground floor plan of a semi-detached residential building with two mirrored units. Each unit features a front verandah leading into a living room, a staircase with an adjacent store, and a kitchen at the rear connected to a terrace. The layout is symmetrical, with both units sharing a central dividing wall, and dimensions are clearly indicated for spaces, walls, and openings. I also designed the first floor plan and the elevations. The first floor plan of the semi-detached building has two mirrored units. Each unit contains two bedrooms—a master bedroom and a regular bedroom—both with attached toilets/baths. A central staircase and lobby provide access, and the layout is symmetrical, with clearly indicated room sizes, wall dimensions, and window/door placements.
floor-plan 2d-floor-plan structural-2d-drafting 2d-apartment 2d-architectural-design floor-plan-drawing