Architectural design and rendering of a residential building

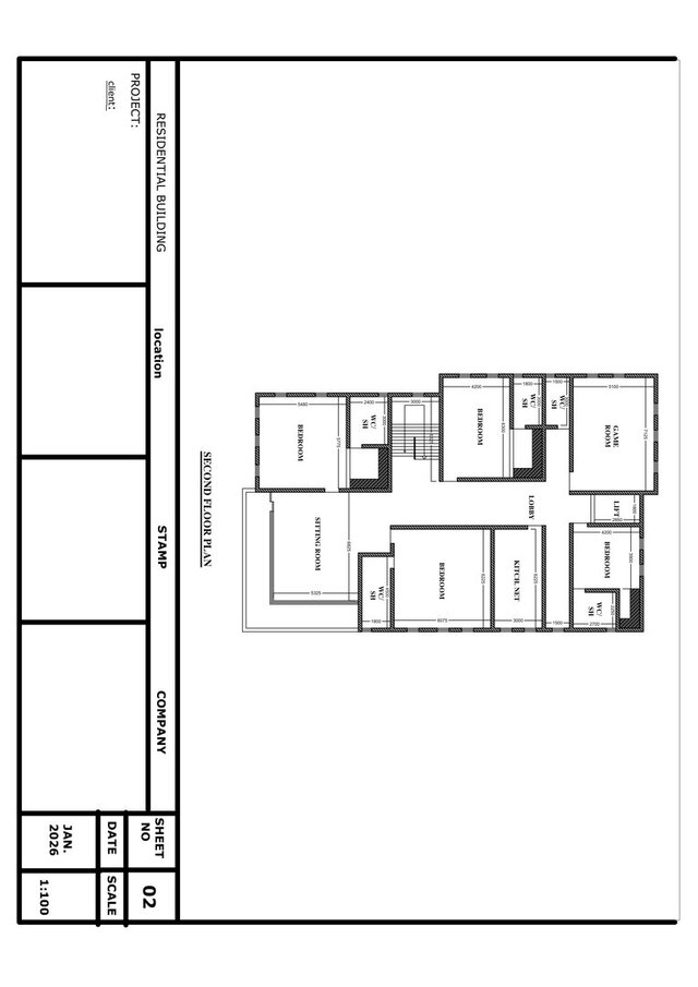
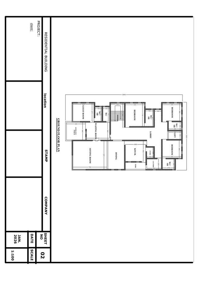
I designed a modern two-storey residential building with a clean, minimalist design, featuring large windows, flat rooflines, and glass-railed balconies. It is complemented by a landscaped garden, paved walkway, and a swimming pool, giving it a sleek and luxurious feel. I also uploaded the side view of the building. The other files include the ground floor, first and second floor plans and the elevations designed by me. The ground floor plan features a central entrance porch leading into a lobby, with a sitting room, dining area, and kitchen arranged for common use. It includes multiple bedrooms, guest room, laundry, storage, and several WC/shower spaces, with a waiting area and lift incorporated for accessibility.
architectural-2d-drafting-services 2d-floor-plans 2d-3d-design 2d-3d-cad-modeling