• I will create precise 3D BIM models from your 2D plans
About this service
I offer professional CAD and BIM conversion services.
My services include:
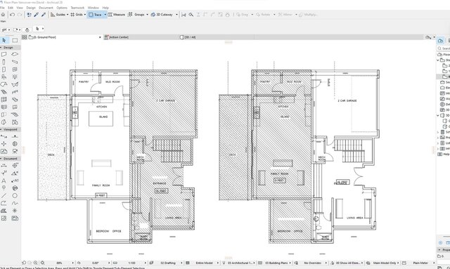
Converting JPG, PNG, or PDF files into accurate AutoCAD 2D DWG drawings
Creating 3D Revit models from existing DWG or 2D plans
Drafting floor plans, elevations, and sections
Ensuring precise scaling and layer organization
Whether you need architectural, I deliver clean, editable CAD and Revit files ready for design or construction use.
My services include:
Converting JPG, PNG, or PDF files into accurate AutoCAD 2D DWG drawings
Creating 3D Revit models from existing DWG or 2D plans
Drafting floor plans, elevations, and sections
Ensuring precise scaling and layer organization
Whether you need architectural, I deliver clean, editable CAD and Revit files ready for design or construction use.
I offer professional CAD and BIM conversion services.
My services include:
Converting JPG, PNG, or PDF files into accurate AutoCAD 2D DWG drawings
Creating 3D Revit models from existing DWG or 2D plans
Drafting floor plans, elevations, and sections
Ensuring precise scaling and layer organization
Whether you need architectural, I deliver clean, editable CAD and Revit files ready for design or construction use.
My services include:
Converting JPG, PNG, or PDF files into accurate AutoCAD 2D DWG drawings
Creating 3D Revit models from existing DWG or 2D plans
Drafting floor plans, elevations, and sections
Ensuring precise scaling and layer organization
Whether you need architectural, I deliver clean, editable CAD and Revit files ready for design or construction use.
I offer professional CAD and BIM conversion services.
My services include:
Converting JPG, PNG, or PDF files into accurate AutoCAD 2D DWG drawings
Creating 3D Revit models from existing DWG or 2D plans
Drafting floor plans, elevations, and sections
Ensuring precise scaling and layer organization
Whether you need architectural, I deliver clean, editable CAD and Revit files ready for design or... read more
My services include:
Converting JPG, PNG, or PDF files into accurate AutoCAD 2D DWG drawings
Creating 3D Revit models from existing DWG or 2D plans
Drafting floor plans, elevations, and sections
Ensuring precise scaling and layer organization
Whether you need architectural, I deliver clean, editable CAD and Revit files ready for design or... read more
I offer professional CAD and BIM conversion services.
My services include:
Converting JPG, PNG, or PDF files into accurate AutoCAD 2D DWG drawings
Creating 3D Revit models from existing DWG or 2D plans
Drafting floor plans, elevations, and sections
Ensuring precise scaling and layer organization
Whether you need architectural, I deliver clean, editable CAD and Revit files ready for design or construction use. read less
My services include:
Converting JPG, PNG, or PDF files into accurate AutoCAD 2D DWG drawings
Creating 3D Revit models from existing DWG or 2D plans
Drafting floor plans, elevations, and sections
Ensuring precise scaling and layer organization
Whether you need architectural, I deliver clean, editable CAD and Revit files ready for design or construction use. read less
Service offer categories
2D CAD Drawing to Revit Conversion Services
Architectural BIM Services
Software & skills
2D CAD Drawings
2d autocad
Architectural 3D Model
Architectural CAD Drafting
Autodesk Revit Architecture
CAD Drafting
Floor Plan Design
Revit 3D Modeling
+5 more
Member since
August 2025
Languages
English,
Hindi
Avg. response time
1 hour
AutoCAD Draftsman professional with expertise in Revit Architecture
Hi there!
I’m a Civil AutoCAD Designer and Revit Architecture Specialist with 3 Years of experience creating detailed, accurate, and professional drawings for residential, commercial, and infrastructure projects.
I help architects, engineers, and contractors transform concepts and sketches into precise CAD drawings and 3D BIM models ready for design, documentation, or construction.
What I can do f... read more
I’m a Civil AutoCAD Designer and Revit Architecture Specialist with 3 Years of experience creating detailed, accurate, and professional drawings for residential, commercial, and infrastructure projects.
I help architects, engineers, and contractors transform concepts and sketches into precise CAD drawings and 3D BIM models ready for design, documentation, or construction.
What I can do f... read more
Cad Crowd Billing Security policy
Service quality is protected by Cad Crowd Billing Security policy.
More similar services
See related services
- 3D Design services
- 3D Modeling services
- CAD Design services
- 2D & 3D Design services
- 2D & 3D Modeling services
- 2D CAD Design services
- 2D & 3D CAD Design services
- Drafting services
- 3D Models services
- AutoCAD services
- Mechanical Design services
- Rendering services
- Product Design services
- 3D Rendering services
- 2D Drafting services
- 2D Drawing services
- 2D AutoCAD services
- CAD Drafting services
- Architectural Design services
- SolidWorks services
- 3D Solidworks services
- CAD Drawing services
- Mechanical Engineering services
- 2D & 3D Drafting services
- 2D/3D AutoCAD services
- 2D & 3D Modeling Solidworks services
- 2D & 3D Architectural Design services
- Floor Plans services
- 3D Visualization services
- Architectural Drafting services
- Design Engineer services
- Interior Design services
- 3D Architectural Rendering services
- Mechanical Engineer services
- Construction Drawings services
- 2D & 3D Floor Plans services