Woodworking is often a crucial element for most architectural works, whether you’re building a new house or handling home improvement of any sort. It won’t be much of a problem if your client (or homeowner) is fine with purchasing mass-produced furniture or wooden decorative elements because then you can bill the client directly for every purchase. However, things can get quite a bit more complex when the client specifically asks for custom woodwork products, which always require millwork drawing services beforehand.
Cad Crowd helps designers, architects, and companies find the best freelance millwork drawing services in the market. We’ve got years of experience and an extensive network of talent that we’ve made easy to tap into as a leading provider of freelance design services. Along that comes a lot of insight that we’d love to share.
In this article, we’ll examine how and why millwork drawing services are an essential part of your CAD drafting company.
🚀 Table of contents
Millworkers produce millwork drawings
The problem is that – and let’s get something straight here – designers (or general contractors, depending on who’s actually in charge of the project) do not produce millwork drawings. You might think that if a CAD drafting company was hired to create 3D modelings of the project plan, it should also be responsible for producing millwork drawings; after all, the drawings are some schematics to be included in the construction documents, so the drafting company should handle it, too. But you’d be wrong. Millwork drawings should remain in the domain of the millworker assigned to build the custom woodwork.
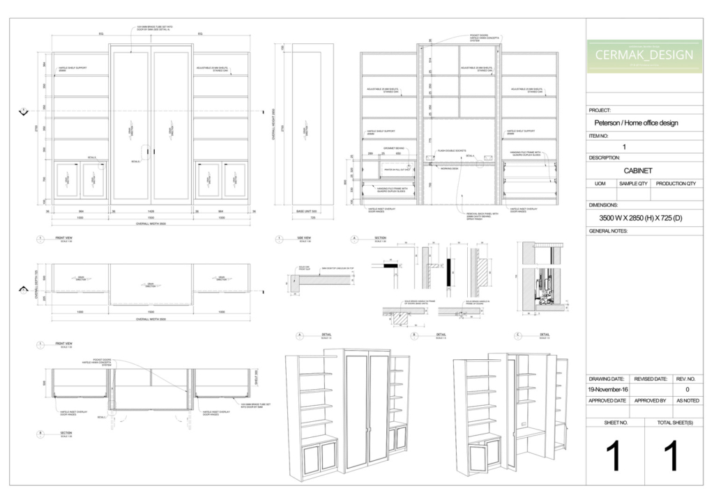
At least in the United States, the typical workflow in such a project requires the designer to provide the millworker with a “design intent” or basic information about the product dimensions, materials, styles, colors, finishes, and other little details (such as the types of fasteners and decorative elements). It’s more or less a sketch or rough visualization of how the final product should look. The millworker then takes the design intent and interprets it into a set of technical millwork drawings.
This is also the main reason why two millwork drawings for the same product can be entirely different from one millworker to another. Millworkers and design and drafting firms probably have different practices, tools, and methods to get the job done. For example, the main components of a desk (legs and tabletops) can be either handcrafted or fabricated using benchtop CNC; each method needs a different drawing. While there are certain standards to follow, such as document formatting and units of measurement, the details are always drawn in accordance with the method.
RELATED: Casework vs. millwork design: A detailed breakdown for freelancers and architectural firms
Designers are not millworkers, meaning they may not always know the tooling specifications in the millwork shop or what processes are employed to build the product. More importantly, this is all about liability in the sense that the designers don’t want to be held responsible for assembly issues or if the final product has installation problems.

Once the drawings are done, the millworker sends the documents to the designer for approval. The goal is to make sure that the design intent remains intact. In case something doesn’t conform to the original idea, the drawings are sent back for revision. For instance, if the frame of the nightstand is supposed to be made of stainless steel, as indicated on the approved drawing, and the millworker ends up fabricating the parts from aluminum, somebody has to be responsible for the unauthorized change. The client likely blames the designer for the mistake, and yet the designer knows that the millworker is the party in the wrong here.
To avoid unnecessary errors like that, it’s advisable to work only with a local (to the client), reputable millwork shop as a proactive measure. For a small project with no more than four or five custom woodwork products, a one-man operation millwork shop should be able to handle the workload just fine.
Another thing to put in mind here is the cost associated with millwork drawings and fabrications from architectural design firms. As far as the client is concerned, all the custom woodwork products fall within the designer’s responsibility. The client shouldn’t be bothered with how the products are made. This is to simplify the contract agreement and payment. The millworker is a subcontractor of the designer; the former works on the latter’s behalf. So, if you’re the designer, you’re expected to cover the cost associated with the millwork jobs out of your own pocket. But you can always list it as an additional service in the invoice and charge an extra fee to the client.
RELATED: Millwork drawings for drafting and design: Complete cost, rates, and fees for firms and companies
Design intent
To say that a design intent resembles a rough sketch might be a bit insulting to designers. Although it probably isn’t the most visually representative of the product, the “sketch” is pretty comprehensive from a technical standpoint. Let’s say the product in question is a pretty elaborate nightstand with multiple soft-close drawers, cabinet doors, hidden compartments, built-in LED lighting, and a unique locking mechanism. If the client wants to use specific brands for the locks and LED lights, the designer will point it out in the drawing. Details about joinery and door/drawer handles must be included as well. Sometimes, the client also wants different colors for the top, side, bottom, and front panels, so everything must be clearly annotated. So, it’s all those in addition to the general specifications like dimensions and materials.
There have been cases where the sketch comes with some pretty prescriptive notes; for example, edges need to be sanded off and smooth to the touch, metal elements should be chrome plated, the bottom of the legs need to have high-quality non-slip pads, specific types of joinery to use, and so on. With that in mind, design intent is more than just a rough sketch; it can be complicated depending on the product’s intricacy. And most custom woodwork products tend to be pretty intricate.
How millwork services are essential to CAD drafting companies
To reiterate, only the millworker understands the shop well enough to be able to produce the drawings based on the design intent. That said, it’s not uncommon for millworkers to outsource the drawings to professional drafters. If outsourcing is the case here (unless they can do the job themselves), most millworkers will likely hire an independent drafter – rather than an interior design firm – for budget reasons. Hiring a single-person operation is often much more affordable than an entire firm, allowing for a better profit margin.
RELATED: How do companies use millwork shop drawings for 3D furniture modeling and design?
What if you run a small CAD drafting and design company that doesn’t have an in-house draftsperson to produce millwork drawings?
Let’s say a designer hires the company to produce a 3D floor plan for an interior redesign project, which involves replacing old furniture pieces with new custom woodwork. Now, before you rush to the computer and fire up that CAD software of yours, the right thing to do first is to get in contact with the millwork shop assigned to build the new furniture. Without guidance from the millworker (concerning the tooling, techniques, methods, etc.), it’s nearly impossible to know if what you’re drawing is even close to being accurate.

And because you don’t have an in-house drafter, you then outsource the job to another millwork drawing service. A CAD drafting company outsourcing a millwork drawing to an independent drafter doesn’t sound ideal indeed, but there’s nothing wrong with it anyway. While it’s the only option, it doesn’t mean you can’t reap some benefits from the practice. Utilizing an external drafter might be not only helpful to the company but also essential to the project’s success.
- Quick solution: a full-time employee can be expensive. The hiring alone is costly, and the drafter will be on your payroll. Outsourcing the task to an external millwork drawing service is a lot more affordable.
- Familiarity: an experienced drafter, especially one who has worked with the same millworker in the past, is more familiar with how the shop is tooled and what methods are used to fabricate custom products. The drafter’s familiarity with the shop takes away a lot of guesswork and relieves you from the otherwise obligatory research into the millwork’s production processes.
- Less likelihood of revisions: if the millwork drawing is done by a professional drafter, there’s less likelihood of the drawing getting rejected by the designer/general contractor. Based on the information provided by the millworker, a capable drafter can easily interpret the design intent and turn it into a detailed technical drawing that precisely represents product specifications and fabrication methods.
- Efficient manufacturing: with comprehensive drawings, the millwork shop can optimize the production workflow, leading to a faster turnaround time. Also, accurate measurement of every component prevents the shop from over-ordering materials and supplies, hence minimum waste.
- Cost efficiency: quick approval from the designer means minimum delay. While hiring millwork drawing services is not free; your CAD drafting company still ends up saving time and money from unnecessary reworks that may bottleneck the project.
It’s all about streamlining the project. As a CAD company, you want the millwork drawings done fast by a professional who actually knows their way around the millwork shop. If it can actually save time and money, then there’s little reason not to do it.
RELATED: Hiring freelance woodworking drafting and design services: All you need to know
Effective communication
We tend to think of millwork drawings only as just some kind of technical documents you have to make in every construction project. More than that, they’re a form of communication between the designer and the millwork shop. They’re like instructions to be used by the millwork shop to fabricate custom woodwork products in accordance with the designer’s idea. Clear drawings done by professionals help avoid miscommunication and minimize project delay.
Where Cad Crowd comes in
Not every CAD drafting company has a professional for every job. Many of them specialize in 3D modeling, animated rendering, and 2D-to-3D file conversions, while others are better suited to creating complete blueprints. It makes good sense that some companies turn to independent freelancers or external design firms to cover highly specific jobs, like millwork drawings. Cad Crowd is here to help you connect with some of the most skillful drafters in the United States, with years of experience working with countless different millwork shops for big and small architectural projects.