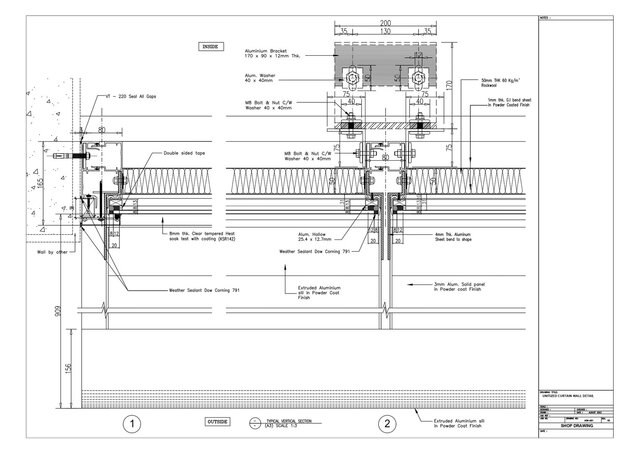
Unitised curtain wall shopdrawing
LingH
Follow
Following
Hire
Collect
Share
Share with friends & colleagues
Unitised curtain wall shopdrawing design by LingH
Copy link
Email
Messages
WhatsApp
Messenger
Facebook
X.com
Linkedin
Report
Design and drafting unitised curtain wall shopdrawing for construction fabrication
Published
Mar 30, 2025
in
2D CAD Drafting Services
2D CAD Design Services
cad
window
Rendering Images