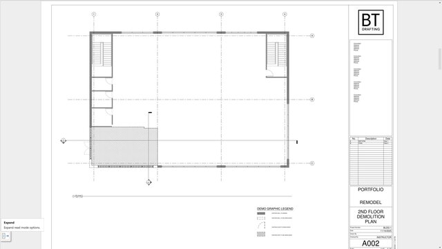
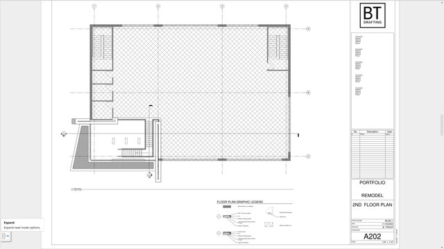
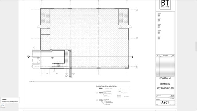
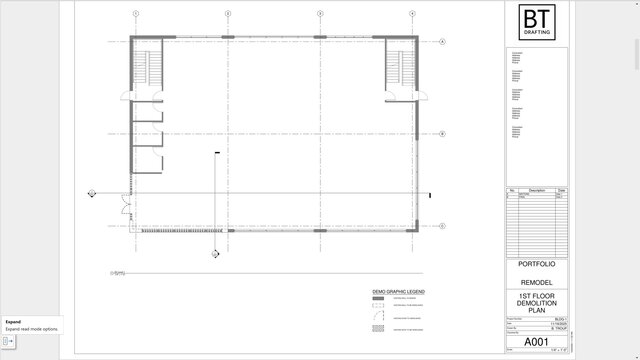
Two-story Remodel - Drafting & Modeling

Created coordinated architectural documentation for a two-story remodel, including demolition drawings, new plans, elevations, sections, and 3D renderings. Included CAD to Revit conversion. Focused on clean drafting, sheet organization, and accurate representation of proposed design changes.
revit-3d-modeling cad-conversion renovation-plan