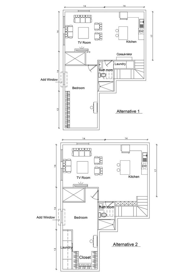
Two Design Plan for Basement Suite Conversion in Canada

Two distinct basement design projects were completed remotely from Iran for two separate Canadian clients. Given the client's desire to minimize costs, only 2D drawings were delivered. Each project was presented with two alternative design options, outlining the pros and cons of each. The final designs were delivered after incorporating necessary modifications into the selected option.
archicteture 2d-plan archictectural-design auto-cad archi-cad-drwaing-services auto-cad-drafting autocad-architecture autocad-2023 archetectural-design 2d-3d-cad-modeling autocad-2d-design 2d-plan-design 2d-and-3d-design