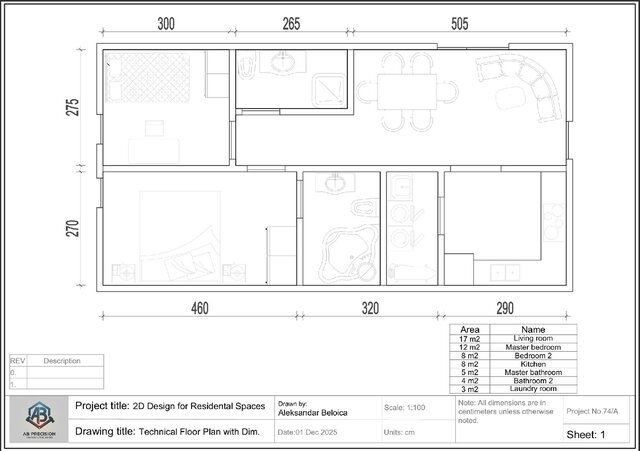
Turning Vision into Reality: Precision 2D CAD for Modern Living Spaces

Bridging the gap between Design and Execution In the world of high-end interior design, there is no room for "approximate" measurements. A 5mm error in a shop drawing can lead to thousands of dollars in lost materials and delays on-site. That’s why I founded AB Precision. As a B.Sc. Engineer, my mission is to provide architects and contractors with technical documentation they can trust. Whether it’s a complex marble fireplace or a detailed 2D floor plan, my focus is on precision and buildability. 🛠 What we do at AB Precision: ✅ Specialized Shop Drawings (Stone, Marble, Joinery) ✅ Precision 2D CAD Drafting ✅ Site-Ready Technical Documentation I’m excited to connect with architects, interior designers, and project managers here on LinkedIn. Let’s build something great together.
Published
autocad stone shop-drawing-services shop-drawing dwg-to-pdf 2d-3d-drafting 2d-and-3d-floor-plans pdf-dwg 2d-3d-modelling construction-document interactive-design marbleinterior technical-drafting manufacturable-design