Technical Detailing of Industrial Steel Staircase & Handrail

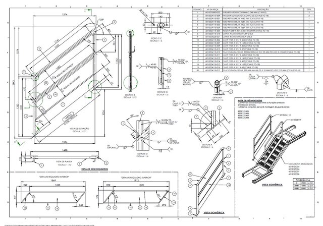
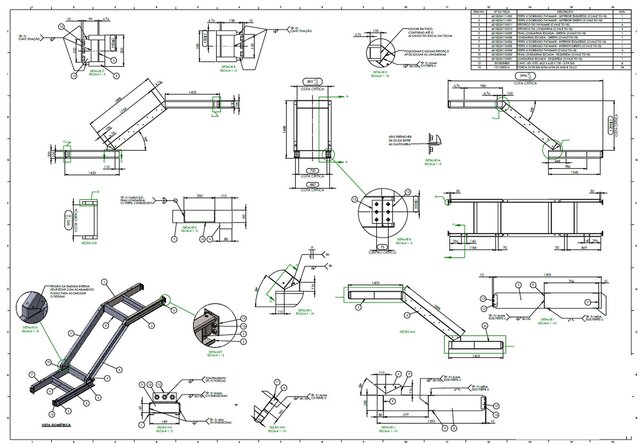
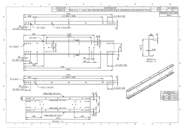
This project involved the complete technical detailing and engineering documentation for a 1288 mm elevation industrial steel staircase. The deliverable focused on high-precision manufacturing blueprints, ensuring seamless transition from design to the shop floor. Key features of this documentation include: Structural Framework: Detailed shop drawings for stringers, landing platforms, and support brackets with precise hole patterns. Step & Tread Assembly: Specification of anti-slip gratings (275 x 800 mm) and bolted connections using ASTM A325 fasteners. Safety Handrail System: Comprehensive layout of the D48 mm handrail, including weldments for elbows, kickplates, and wire mesh protection. Welding Specifications: Standardized welding symbols (fillet, groove, and contour) were applied to ensure structural integrity and compliance. Bill of Materials (BOM): Organized parts lists with item numbers, quantities, and material specifications for streamlined procurement. The focus was on clarity and accuracy to minimize fabrication errors and simplify the final assembly process.
metalwork bom mechanical-design sheet-metal fabrication-drawing technical-drawing steel-structure weldment projectblueprints industrial-staircase