Structural Drawings

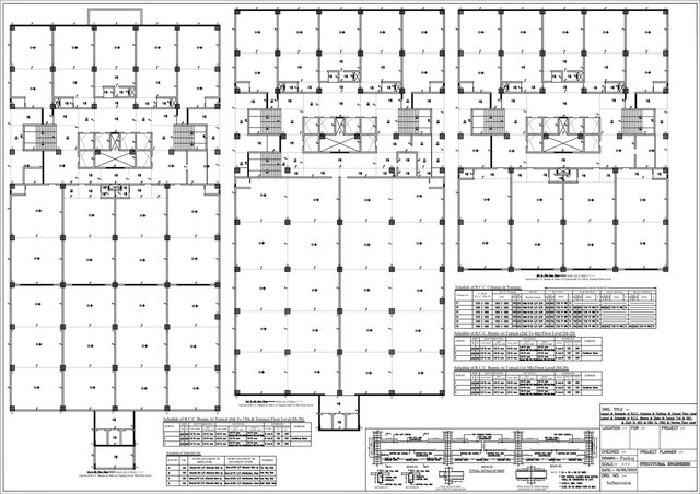
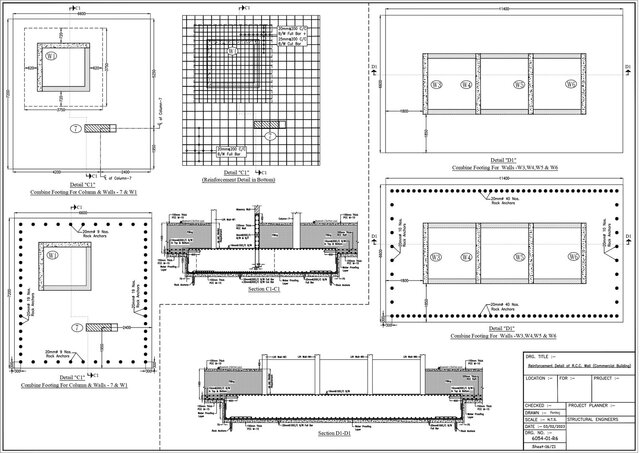
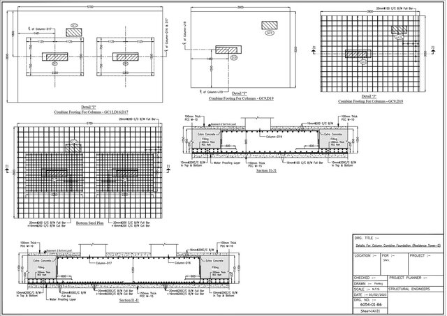
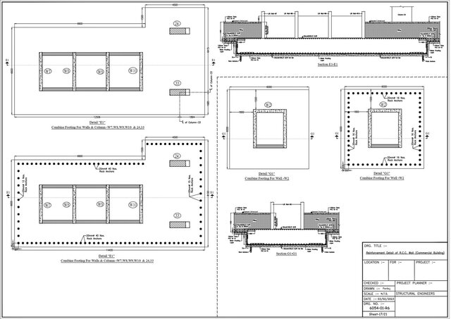
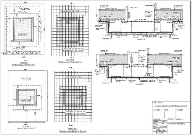
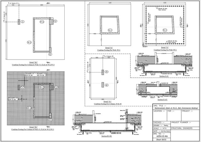
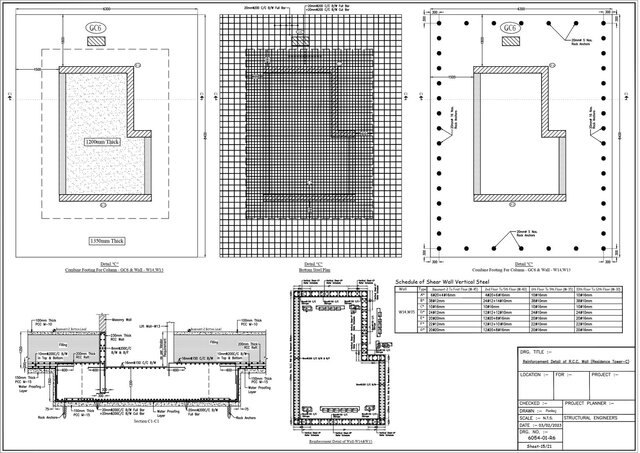
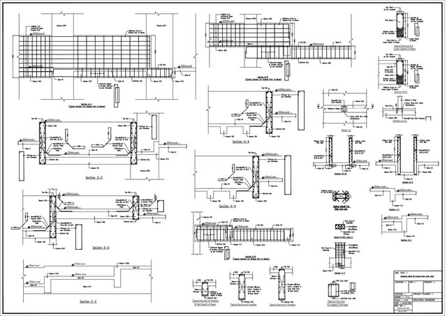
1. Structural Submission Drawings: Structural submission drawings are prepared as part of the approval process for obtaining sanction from local authorities or structural consultants. These drawings include essential details such as column locations, beam layouts, slab levels, and foundation types. They represent the overall structural framework of the building and ensure compliance with relevant building codes and design standards (such as IS Codes in India or CSA Standards in Canada). Submission drawings serve as the official document for review, approval, and coordination between architects, engineers, and contractors. Key Features: Structural plan, section, and elevation details Load transfer paths and column positioning General notes, material specifications, and design references Coordination with architectural and service drawings 2. Raft Foundation Drawings: Raft (mat) foundation drawings provide detailed reinforcement layouts and construction guidelines for large foundations that support multiple columns. These drawings show plan and section details, reinforcement distribution, bar bending schedules (BBS), and concrete thickness. Raft foundations are designed to distribute heavy loads uniformly over a large area, especially for weak or low-bearing-capacity soils. Key Features: Bottom and top reinforcement details (main bars, distribution bars, extra bars) Column starter locations and spacing Sectional details showing raft depth and cover Reinforcement laps, curtailments, and chair bar details Notes on concrete grade, waterproofing, and execution sequence 3. Slab Reinforcement Drawings: Slab drawings include detailed reinforcement layouts for top and bottom layers of slabs. They indicate bar spacing, direction, lap lengths, and support details over beams and walls. Slab drawings ensure proper distribution of loads and resistance to bending and shear forces. Key Features: Slab reinforcement plan (top and bottom) Main bar and distribution bar details Extra bars over supports (negative moment reinforcement) Slab thickness, level, and concrete grade Clear cover and reinforcement notation details Cross-sections showing slab-beam connection Overall Importance: These structural drawings form the backbone of construction documentation. They bridge the gap between design intent and site execution, ensuring safety, stability, and durability of the structure. Each drawing provides precise information for engineers, contractors, and site supervisors to execute the work efficiently and as per design intent.
civil-engineering engineering-drawings structural-design structural-detailing structural-2d-drafting-and-design-services structural-drafting engineering-drawing structural-submission structural-drawing building-approval raft-foundation slab-design structural-analysia auticad-drafting building-structure concrete-structure structural-engineer civil-structural-design