Structural Drawings
zahidhasanrakib
Follow
Following
Hire
Collect
Share
Share with friends & colleagues
Structural Drawings design by zahidhasanrakib
Copy link
Email
Messages
WhatsApp
Messenger
Facebook
X.com
Linkedin
Report
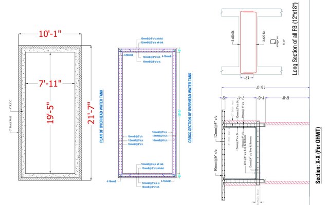
All the drawings i made in AutoCAD after the analysis and design in ETABS
Published
Mar 27, 2026
in
Structural Engineering
Structural Design Services
2D Drawings and Floor Plans
autodesk
autocad
etabs
structural-2d-drafting
2d-architectural-design
Rendering Images