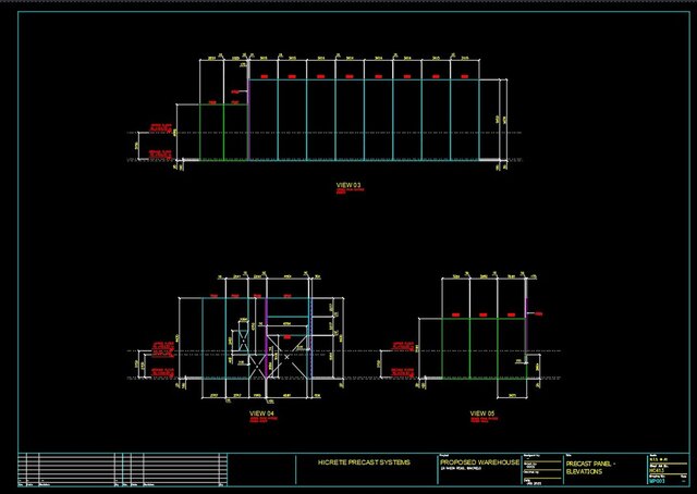
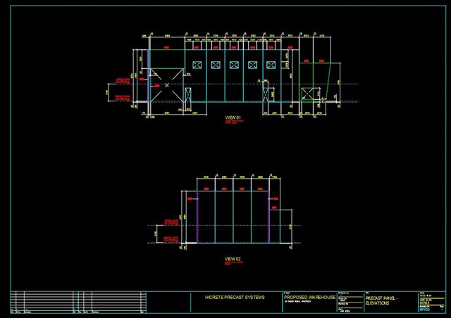
Rebar Details of any Concrete Structures / Steel Platform Shop drawings / Precast Wall Panel Layout Plan and Elevations
Enrique_Palomar
Top Designer
Follow
Hire
Collect
Share
Share with friends & colleagues
Rebar Details of any Concrete Structures / Steel Platform Shop drawings / Precast Wall Panel Layout Plan and Elevations design by Enrique_Palomar
Copy link
Email
Messages
WhatsApp
Messenger
Facebook
X.com
Linkedin
Report
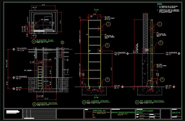
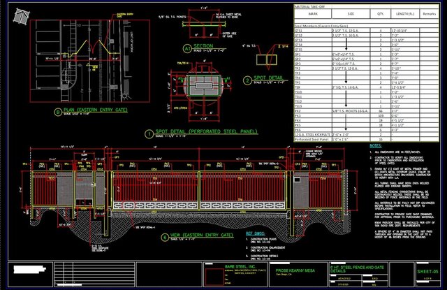
Shop Drawings of 7 Bridges: Rebar details of every part of Bridge includes, Concrete Slab, Foundations, Pier and Abutment Columns, Prestressed Girders, Coping, Approach Slab, Wingwalls, Barcutting and Bending Schedule./Shop Drawings of Concrete Stairs, Rebar Details. Steel Stair Details, Pit Ladder Details, Steel Fence. Precast wall Panel Plan Layout and Elevations.
Published
Oct 17, 2019
in
AutoCAD Drafting & Design
Structural Steel Detailing
Rebar Detailing and Drawing
material-takeoff
rebar-shop-drawings
steel-construction-detailing
2d-autocad
Rendering Images
3D PDF Files