Skid-Mounted Industrial Equipment – Mechanical & System Integration

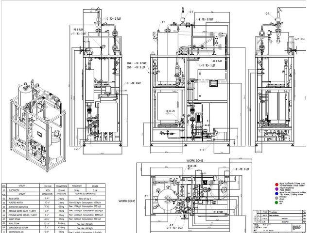
Mechanical and system integration design of a skid-mounted industrial unit, including structural frame, pressure equipment, piping layout, valves, and auxiliary components. The project covers the complete mechanical layout and integration of multiple subsystems into a compact skid, considering accessibility, maintainability, and manufacturability. Special attention was given to equipment arrangement, piping routing, and interface definition between process, mechanical, and utility systems. This design demonstrates experience in skid-mounted equipment, industrial system integration, and complex mechanical assemblies typically used in process and regulated industrial environments.
piping-and-instrumentation-design industrial-machinery solidworks-2024 piping-3d-model skid-mounted-equipment mechanical-integration pressure-equipment