site-portfolio-images-1-

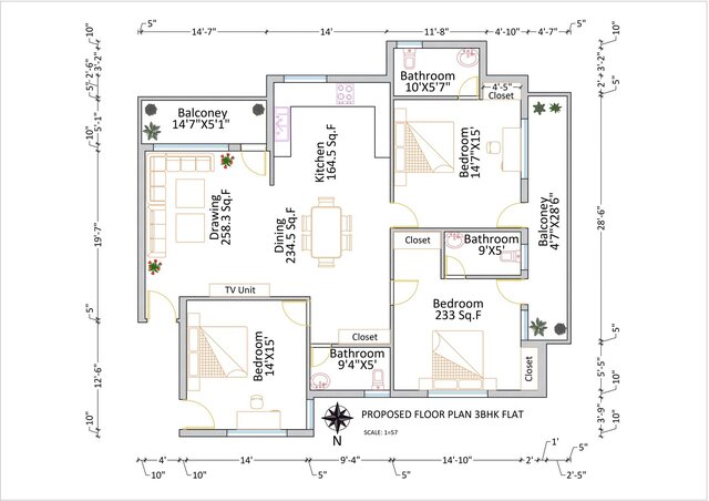
Luxurious 2D and 3D Floor Plan Design In 2023, I received a direct mail inquiry from a US-based real estate developer (direct contact) to design detailed 2D and 3D floor plans for a luxury residential project. The client requested a modern, single-toned floor plan with a focus on elegance and functional space planning. I created a precise 2D layout in AutoCAD, ensuring accurate proportions and circulation flow, followed by 3D modeling in 3ds Max directly from the CAD base. The scene was rendered using V-Ray for photorealistic lighting and material quality, and finalized in Photoshop to enhance clarity and achieve high-resolution presentation. The entire project was completed within 5 days, successfully blending technical precision with luxurious visual appeal that aligned with the client’s design expectations.
architecture 2d-floor-plan 3d-floor-plan residential-apartment houseplan floor-plans