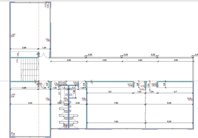
School Project – Construction Detail Drawing
lv-architecture
Follow
Hire
Collect
Share
Share with friends & colleagues
School Project – Construction Detail Drawing design by lv-architecture
Copy link
Email
Messages
WhatsApp
Messenger
Facebook
X.com
Linkedin
Report
Detailed construction drawing developed to explain materials, assemblies, and technical solutions of a school project in Argentina.
Published
Jan 11, 2026
in
Construction Drawings
AutoCAD Drawing Services
2D CAD Design Services
construction
architecture
2d
project
architecture-2d-design
drawing-plans
construction-details
architechtural-plan
Rendering Images