SAN ISIDRO INTERIOR HOUSE RENOVATION

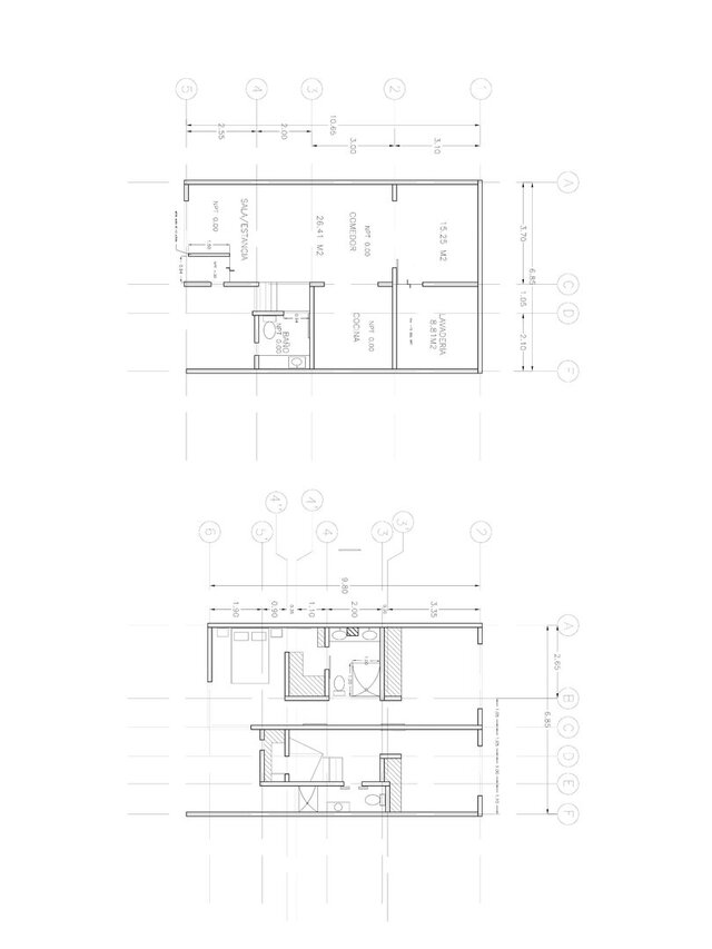
This project involved the remodeling and adaptation of an existing residence to suit a new inhabitant. The original house was accurately modeled in 3D to achieve a clear understanding of the existing spatial conditions before any intervention. The 3D model was used as a working tool to analyze proportions, circulation, and relationships between spaces, allowing informed design decisions throughout the process. Based on this analysis, the intervention focused on rearranging interior spaces, updating finishes, and selectively adding or removing architectural elements while respecting the original structure. This approach ensured that each modification was purposeful, spatially coherent, and aligned with the new programmatic needs of the house.
3d-architectural-visualization 3d-architectural-floor-plan 2d-analysis floor-design 3d-architectural-design-services 2d-3d-drafting interiar-hope-applience-design archetectural-design 2d-3d-cad-modeling