RETAINING WALLS PRECAST

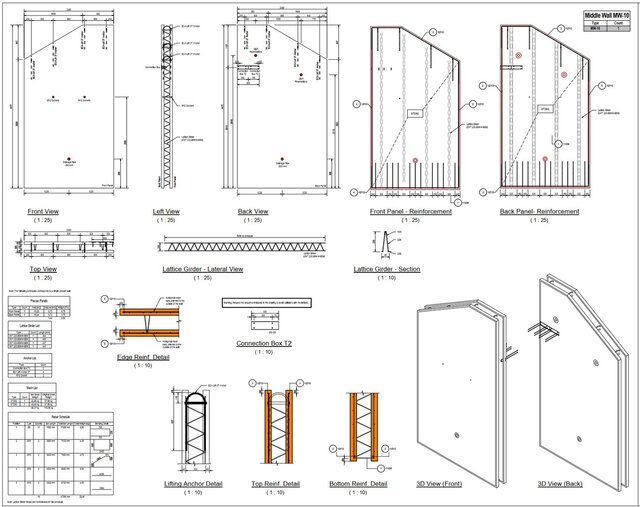
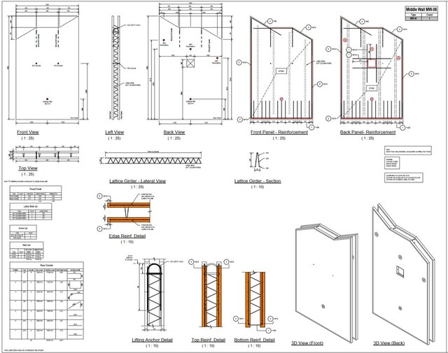
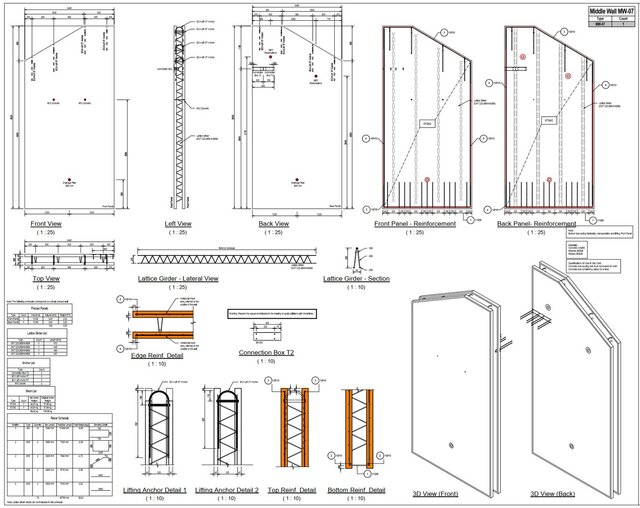
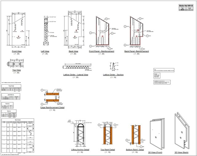
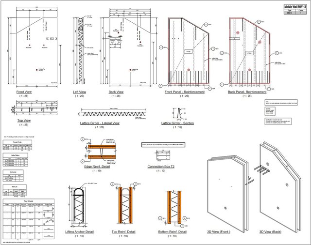
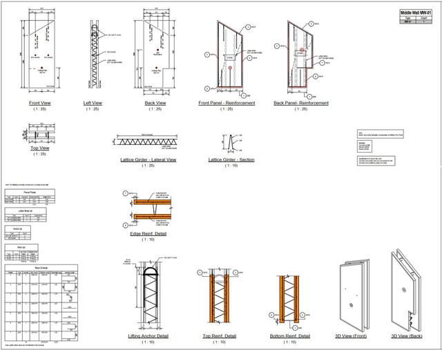
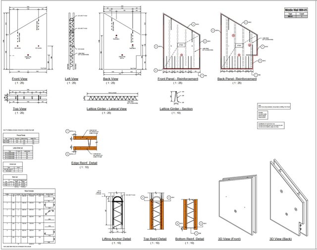
Retaining Walls Precast includes the complete detailing package for precast retaining wall units. The scope covers wall geometry, reinforcement layouts, footing connections, joint details, drainage provisions, lifting anchors, embeds, and production-ready schedules. All components are coordinated for factory fabrication and efficient on-site installation.
Published
rebar-detailing-drawing-services