Resturant design

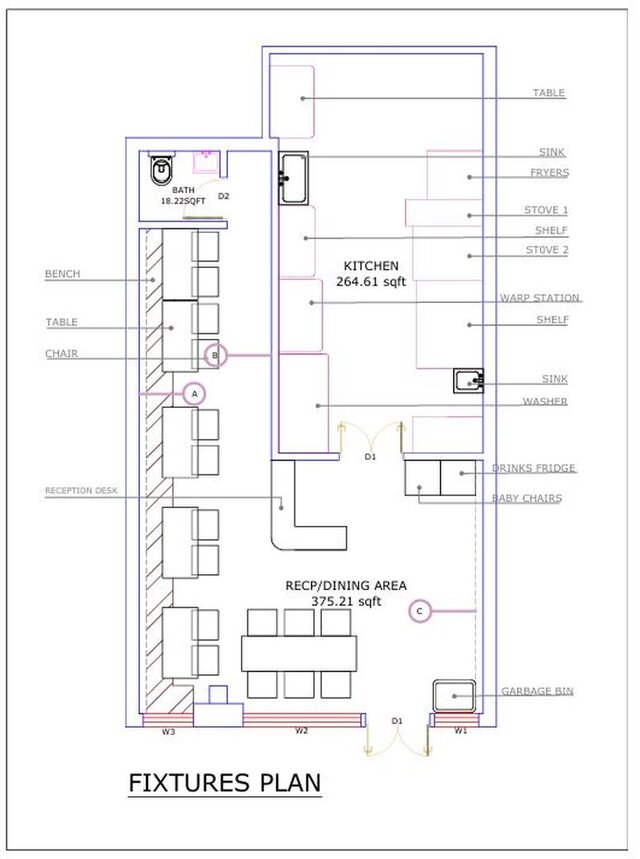
This restaurant design features a functional and elegant layout, inspired by the brand’s logo color palette for a cohesive visual identity. The color theme enhances the ambiance while maintaining simplicity and charm. Designed on a low-cost budget without compromising on style or comfort. Smart space planning ensures efficient service flow and a welcoming dining experience.
shop-design restaurant-concept resturant-design