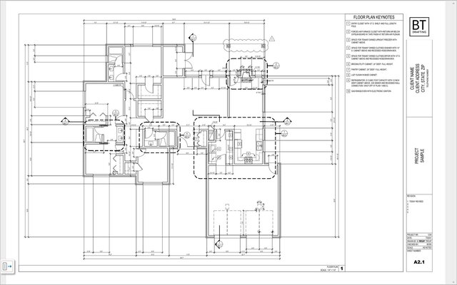
Residential Project

This project showcases a complete residential drafting package, including a fully dimensioned floor plan, detailed enlarged views of bathrooms, kitchen, and a fireplace area, a front exterior elevation, and a coordinated roof plan. The work demonstrates accurate layout drafting, clear annotation, multi-scale detailing, and consistent sheet organization, reflecting the core skills needed to produce clean, professional residential documentation.
architectural-drafting cad-2d