Residential House Floor Plan – AutoCAD
ErShubham25
Follow
Following
Hire
Collect
Share
Share with friends & colleagues
Residential House Floor Plan – AutoCAD design by ErShubham25
Copy link
Email
Messages
WhatsApp
Messenger
Facebook
X.com
Linkedin
Report
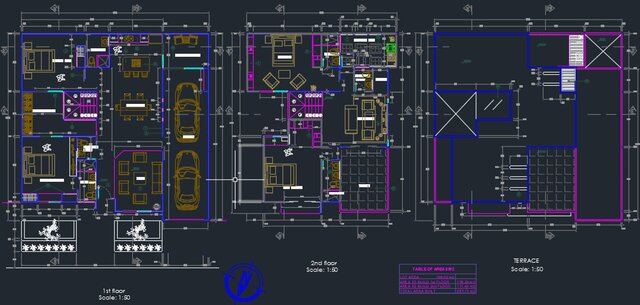
Converted client’s hand sketch into a detailed 2D floor plan with dimensions and furniture layout.
Published
Aug 27, 2025
in
CAD Drafting Services
2D Drawings and Floor Plans
2d-floor-plan
civil-drafting
autocad-drafting
cad-2d
pdf-dwg
2d-house-plan
Rendering Images