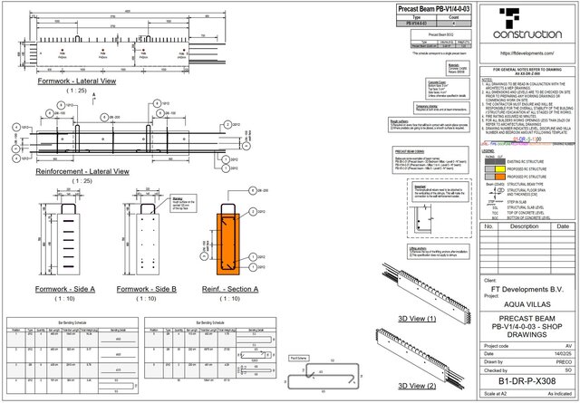
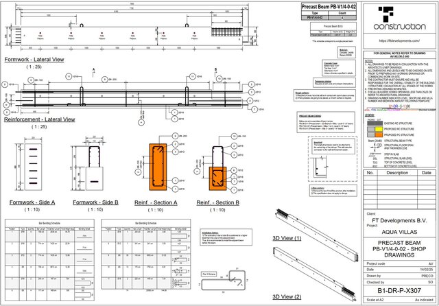
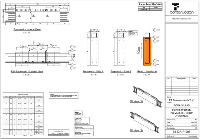
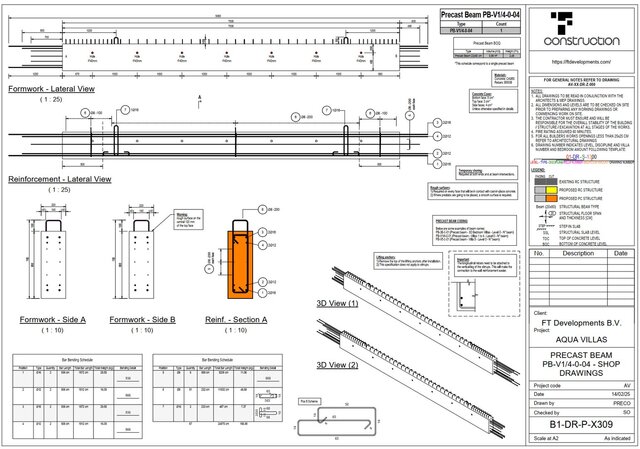
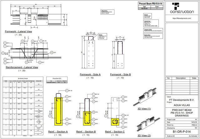
precast-beams-final-12042025

precast-beams-final-12042025 contains the finalized shop drawings and detailing package for the precast concrete beams. The file includes beam geometry, reinforcement layouts, lifting and handling details, connection inserts, embed plates, and production-ready schedules. All details follow project specifications and are coordinated for fabrication and on-site installation.
rebar-detailing revit-3d