Virginia Pool and MEP Plans ready for permit in Arlington

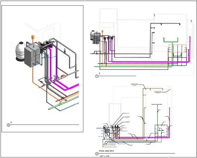
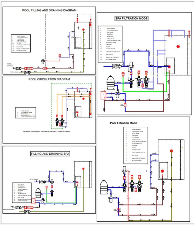
The pool features an infinity-edge design, creating the visual effect of a waterfall at the perimeter. Calculating the water basin volume and pump flow rates proved challenging due to the constantly varying number of swimmers, which significantly altered the water displacement and effective volume during operation.
mechanical pool mechanical-engineering plumbing-design mep mechanical-engineer mep-design filtration pool-mep pooldesign