Point Cloud-Based 3D Modeling and As-Built Design of Industrial Equipment

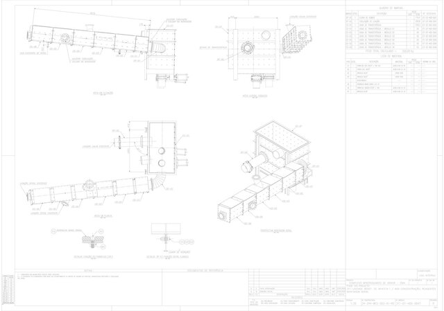
This project involved detailed 3D modeling and design of an industrial equipment assembly based on point cloud data obtained from laser scanning. The point cloud was used as a geometric reference to accurately capture the real as-built conditions of the existing structure. Based on this data, a complete and precise 3D CAD model was developed, including the box structure, flanges, ducts, transitions, supports, and connection interfaces. The modeling process focused on dimensional accuracy, alignment with existing equipment, and constructability, allowing the model to be used for fabrication drawings, interference checking, and future modifications. This workflow enabled reliable reverse engineering of the equipment, reducing field rework, minimizing installation risks, and ensuring compatibility with the existing plant layout. The final deliverables included a clean, parametric, and fabrication-ready 3D CAD model derived directly from point cloud data.
plant-design reverse-engineering point-cloud-to-cad industrial-equipment laser-scanning as-built-modeling