Plan
siminazari
Follow
Following
Hire
Collect
Share
Share with friends & colleagues
Plan design by siminazari
Copy link
Email
Messages
WhatsApp
Messenger
Facebook
X.com
Linkedin
Report
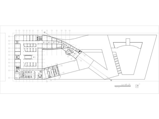
A collection of detailed 2D floor plans created with precision and clarity. Focused on functional layouts, accurate measurements, and professional presentation for residential and commercial projects.
Published
Sep 9, 2025
in
Architectural Design
Architectural Planning and Design
2D Drawings and Floor Plans
2d
architechtural
floor-plan
auto-cad
floor-plan-design
architect-design
archetectural-design
floorplan-drawing
Rendering Images