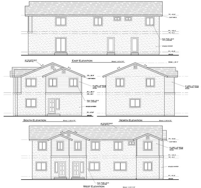
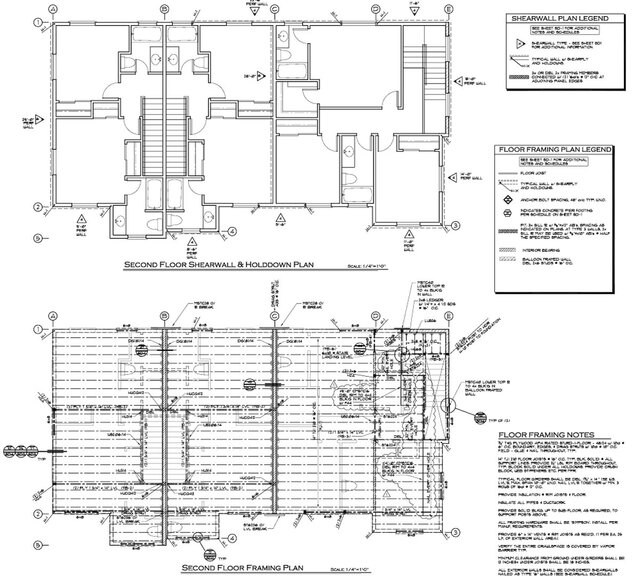
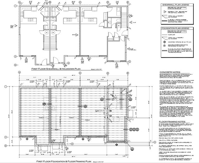
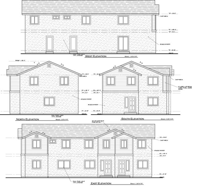
Permit drawings for 402 5th street, sparks project
ronis
Follow
Following
Hire
Collect
Share
Share with friends & colleagues
Permit drawings for 402 5th street, sparks project design by ronis
Copy link
Email
Messages
WhatsApp
Messenger
Facebook
X.com
Linkedin
Report
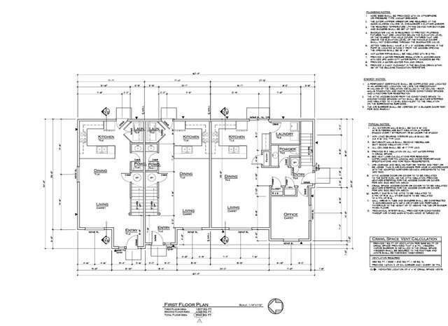
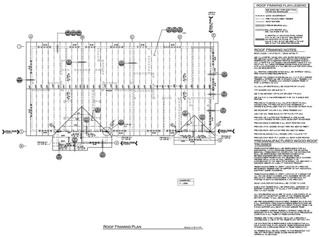
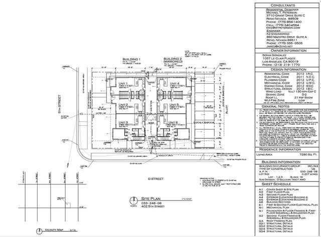
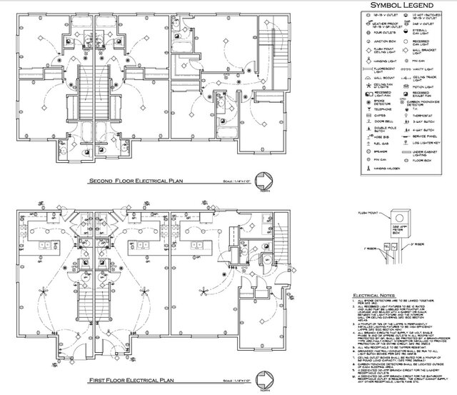
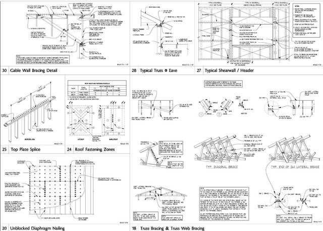
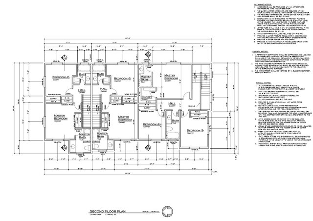
this is my architectural drawing examples for permit
Published
Nov 18, 2025
in
Architectural Design
AutoCAD Drafting & Design
Architectural Drawing Services
architectural-drawing
Rendering Images