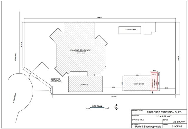
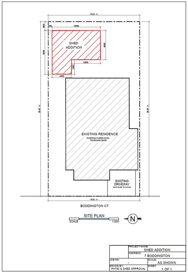
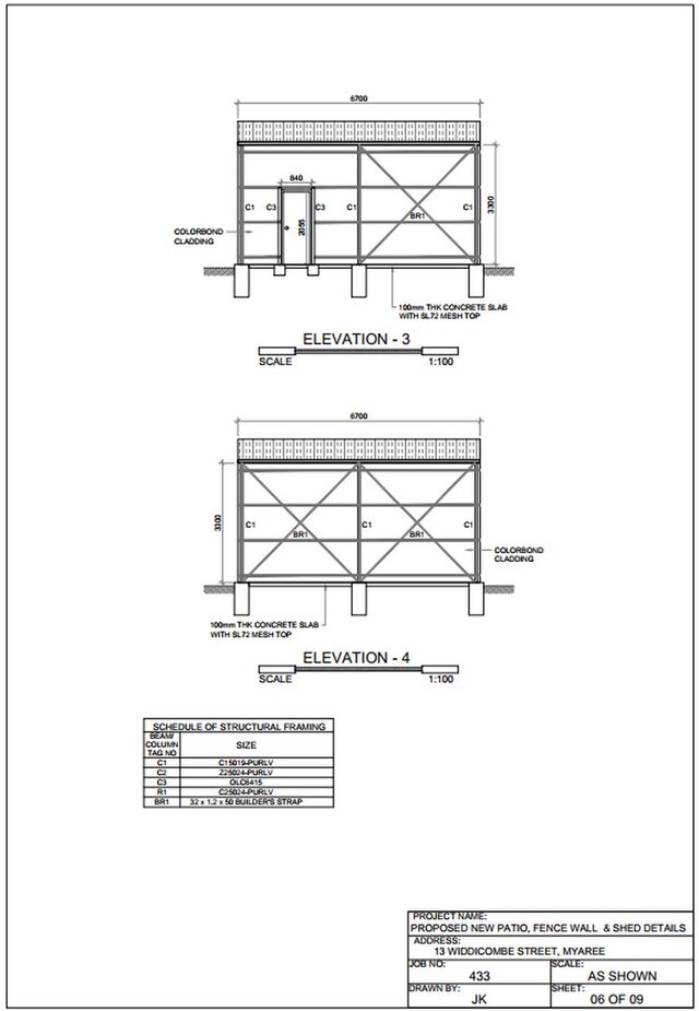
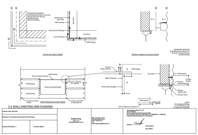
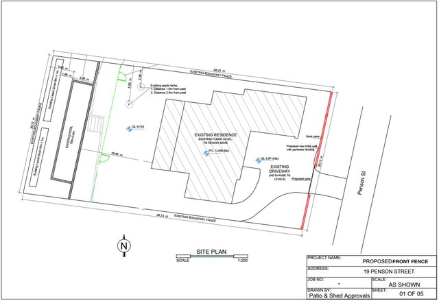
Permit drawing : Patio, Carport, Shed, Fence, Pergolar

I prepare permit-ready drawings for Patio, Carport, Shed, Fence, and Pergola projects across the USA, Canada, and Australia. The package includes site plan, layout plan, elevations, sections, structural notes, footing details, and code-compliant design—ready for city/council submission and contractor use
Published
revit-3d-modeling-service