Parametric Revit Family optimization and documentation

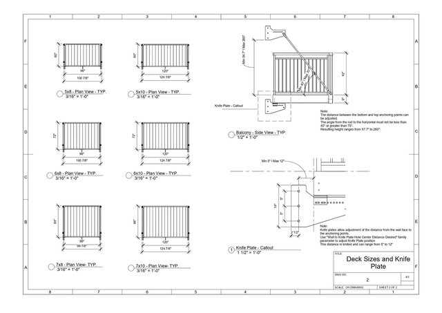
-BIM Content Optimization: take the lead on an existing BIM project, to audit, detect areas of improvements and update geometry align with technical documentation. By restructuring geometry rules and implementing a new nested files organization, I reduced file sizes by 90% (from 15MB to 2.7MB) while expanding product design options and functionality.
documentation revit-family-creation-services revit-families revit-family-creation as-built-documentation-review draftin-revit