One-Bedroom Apartment Technical Design Package (ArchiCAD)

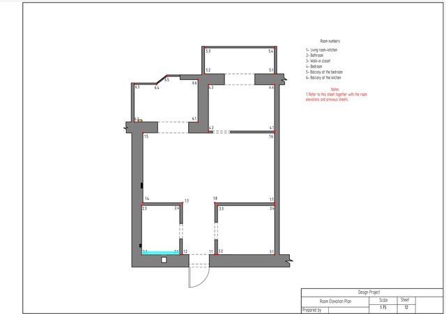
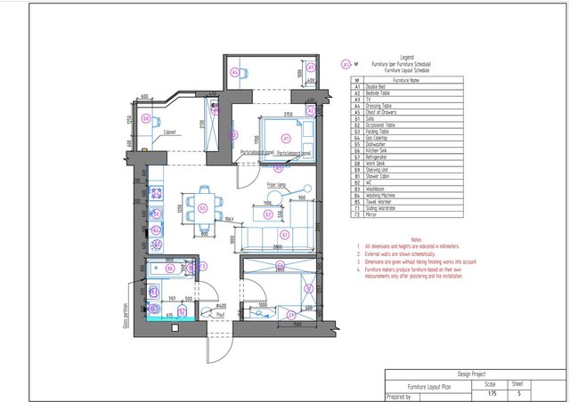
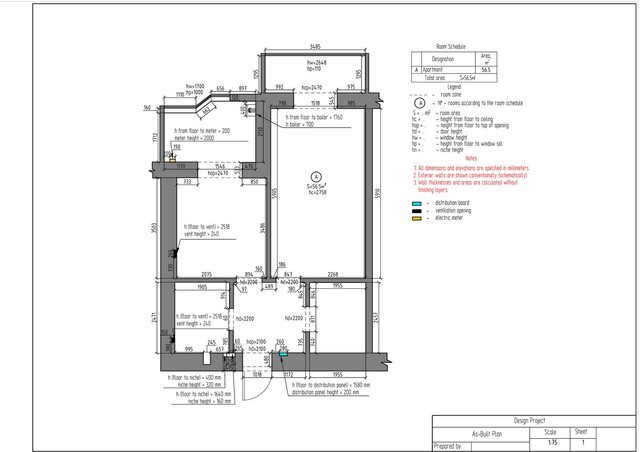
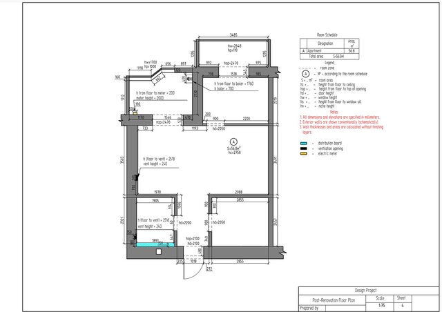
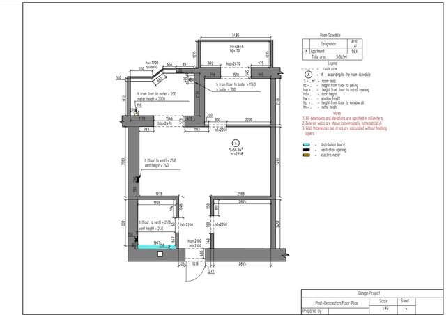
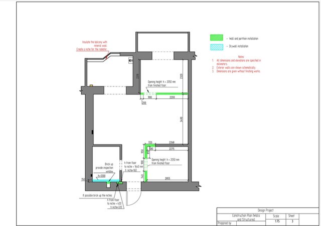
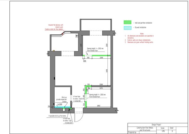
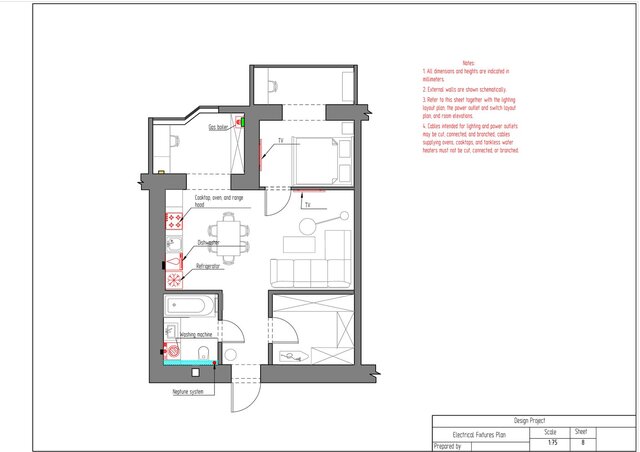
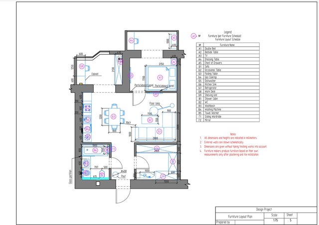
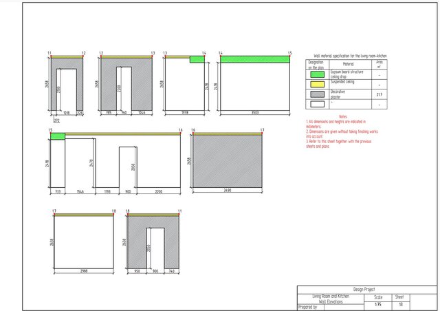
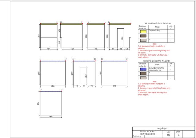
This project is a complete technical design package for a one-bedroom apartment created in ArchiCAD. The drawing set includes measurement plan, demolition and construction plans, post-remodel layout, furniture plan, plumbing layout, floor heating plan, electrical devices plan, outlets and switches plan, lighting layout, ceiling installation plan, and detailed wall elevations for all rooms. The package also contains perspective views of the redesigned apartment.
archicad 3d-modeling interior-design 2d-drawing