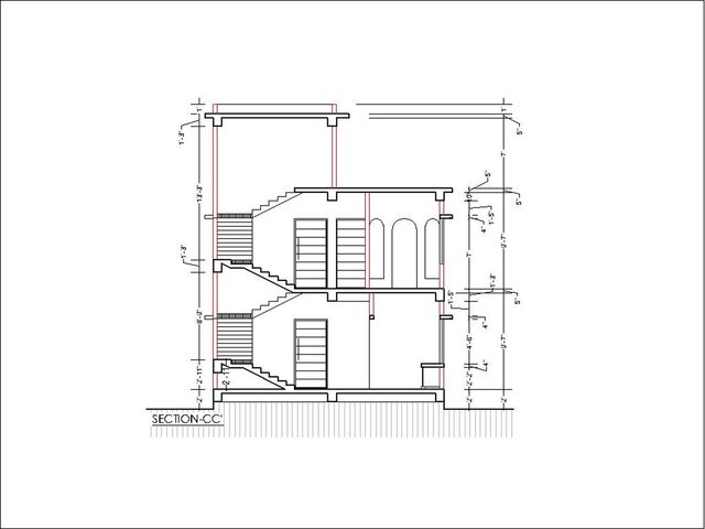
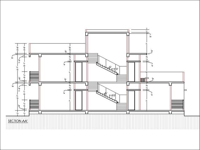
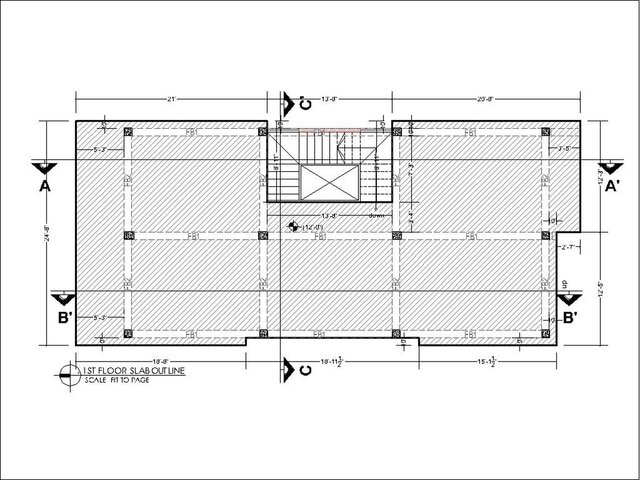
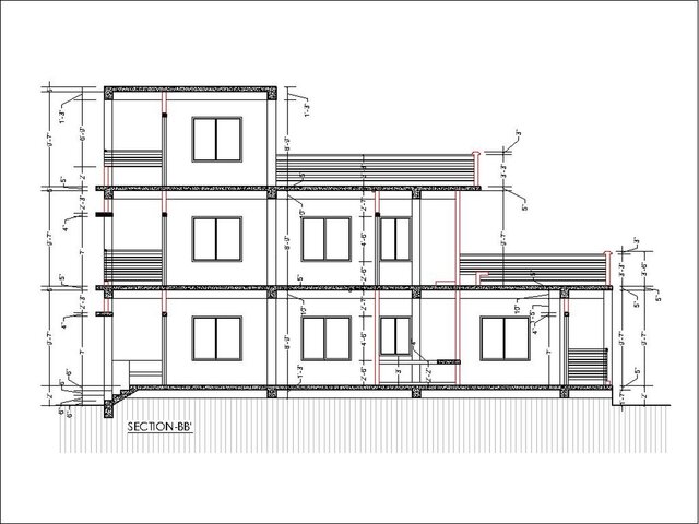
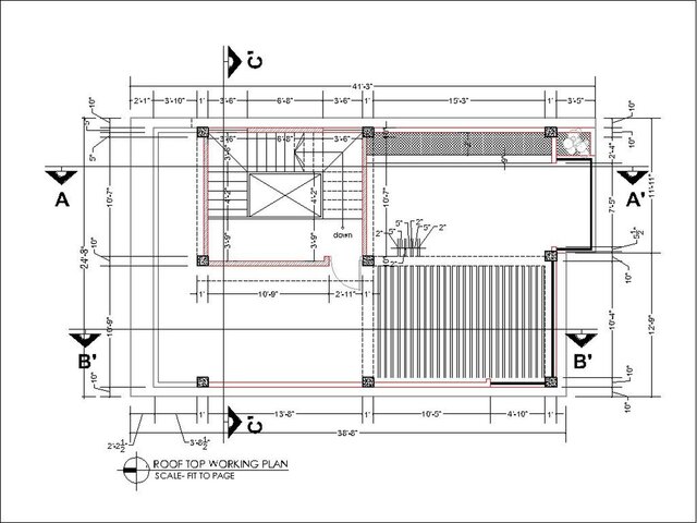
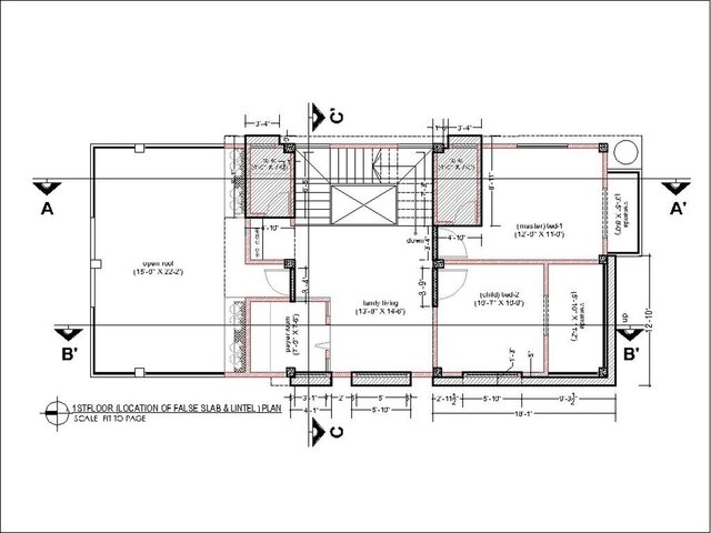
Mr.SUKDEF PANDAY โ€™s 2-Storey Residence

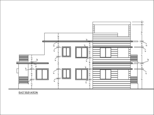
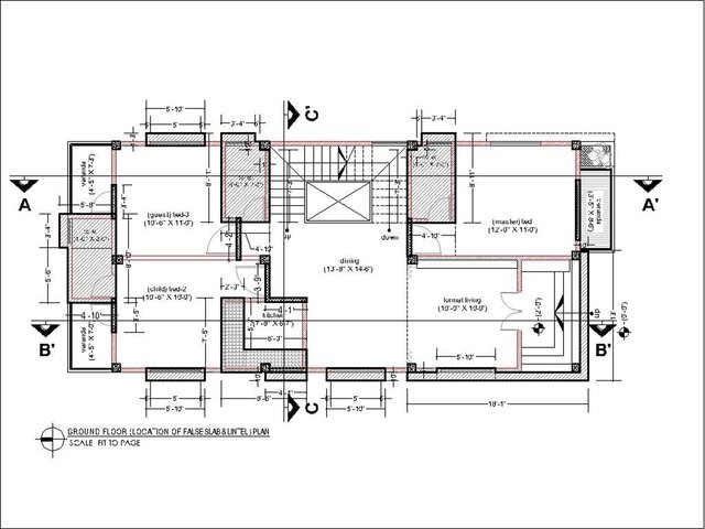
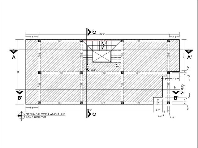
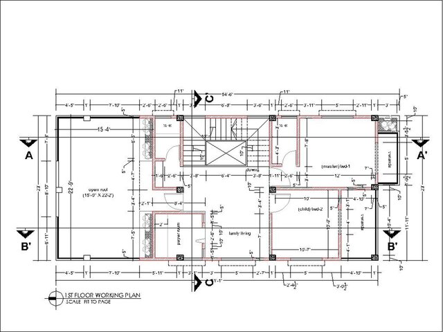
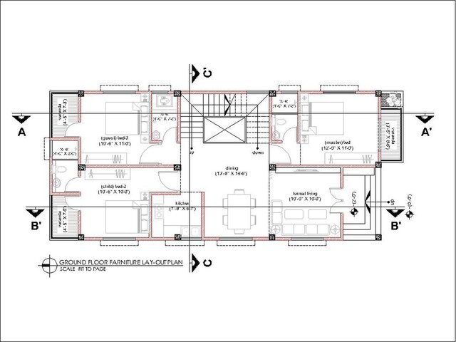
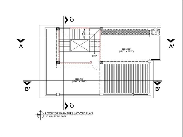
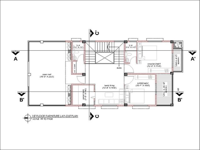
This project is a compact yet functional two-storey residential building designed for Mr. Mitun Sharkar on a 27' x 45' plot. The plan focuses on practical living with well-ventilated and naturally lit spaces while maintaining privacy and aesthetic appeal. ๐Ÿ”น Plot Size: 27 ft ร— 45 ft ๐Ÿ”น Number of Floors: 2 Storey ๐Ÿ”น Key Features: โœ… 3 Bedrooms (spacious and well-zoned) โœ… 3 Toilets (2 attached, 1 common) โœ… 3 Verandas (front & side for cross ventilation) โœ… Living, Dining & Kitchen on each floor โœ… Staircase positioned for optimal circulation โœ… Open space at rear or side for light & air This home is designed for a modern family seeking functionality, natural light, and a strong architectural presence within a compact urban setting.
plane