Modular Garden House: Full Engineering for Mass Production

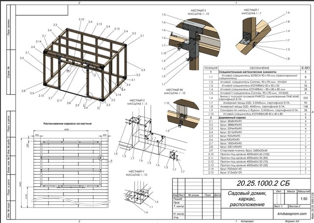
Development of a turnkey modular garden house designed for standardized serial production. This project includes complex wood-frame engineering and complete bill of materials. Turnkey System Design: Engineered the entire structure, including the timber frame, sandwich panel walls, and terrace decking. Production Readiness: Developed a comprehensive BOM with over 100 unique positions: from structural beams and Monroe components to specific fasteners like Torx decking screws. Precise Assembly Documentation: Created detailed 3D assembly guides (SB) with foundation layout points, ensuring error-free site installation. High-End Visualization: Produced photo-realistic renderings to showcase the final architectural look and structural details. Complete Bill of Materials (BOM) including fasteners, flashing (RAL 7016), and even drilling consumables for 100% on-site assembly accuracy.
solidworks 3d-rendering bill-of-materials design-for-manufacturing design-for-manufacturing-dfm technical-drafting modular-construction timber-framing sandwich-panels