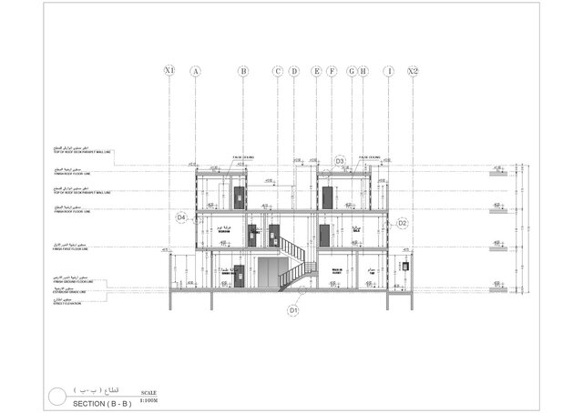
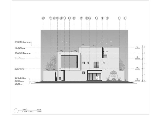
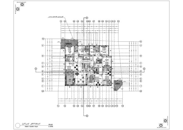
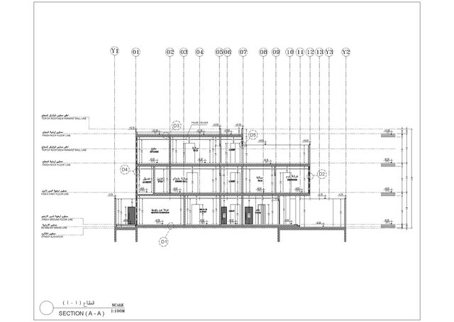
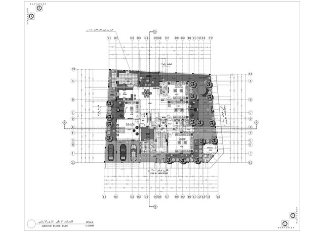
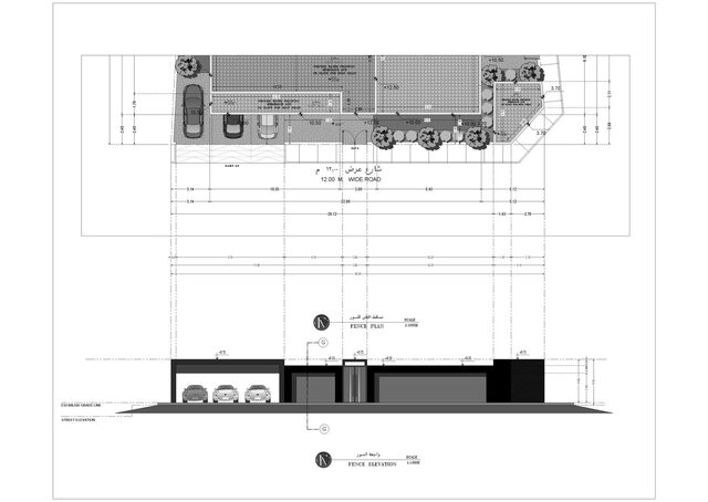
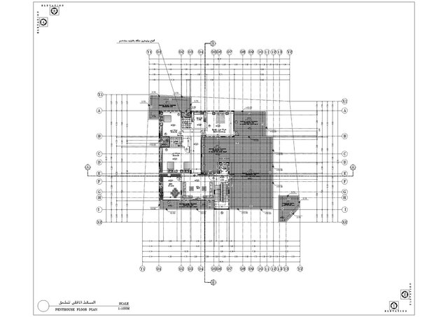
Modern Villa

A modern residential villa designed with a focus on simplicity, elegance, and functional living. The project showcases a contemporary architectural approach that combines clean lines, balanced proportions, and a refined material palette. The design emphasizes harmony between indoor and outdoor spaces, creating a seamless living experience enhanced by natural light and carefully planned openings. The façade reflects a modern identity through the use of contrasting textures, neutral tones, and minimalistic detailing. Special attention was given to spatial organization, ensuring comfort, privacy, and efficient circulation throughout the villa. The project represents a blend of aesthetic value and practical design, tailored to meet modern lifestyle needs.
architectural-2d-drafting-services shop-drawing-outsourcing-services villa-design modern-villa